
Wohn3 Team GmbH
Herr Markus Kappel
004 ···
Nr. anzeigenPreise & Kosten
Provision für Käufer
Bitte beachte, das Angebot kann bei Vertragsabschluss die Zahlung einer Provision beinhalten. Weitere Informationen erhältst Du vom Anbieter.
Lage
Die Nähe zu wichtigen Verkehrsknotenpunkten wie dem Matzleinsdorfer Platz, dem Hauptbahnhof und dem Reumannplatz macht das Wohnbauprojekt in der Davidgasse in Favoriten nicht nur gut erreichbar, sondern auch zu einem zentralen Punkt in der Stadt.
Das Wohnbauprojekt profitiert von der geplanten U2-Station...
Das Haus
Baujahr
2026
Bezug
4. Quartal 2026
Energie & Heizung
Warum sehe ich diese Anzeige? – Du siehst diese Anzeige basierend auf Ihrer Navigation auf unserer Website und den Suchkriterien, die du verwendet hast.
Heizwärmebedarf (HWB)
30,00 kWh/(m²·a)
Gesamtenergieeffizienz (fGEE)
0,75
Weitere Energiedaten
Haustyp
Massivhaus
Energieträger
Fernwärme
Heizungsart
Fußbodenheizung
Details
Ausstattung
- In der frühen Bauphase Rücksicht auf Wünsche zu Grundriss und Zimmergrößen (Wohnungszusammenlegung möglich)
- Höchster Wohnkomfort, ideale Vermietbarkeit und langfristige Wertsteigerung
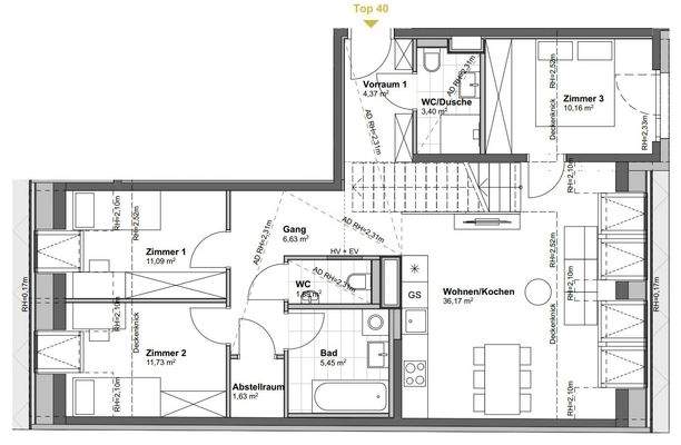
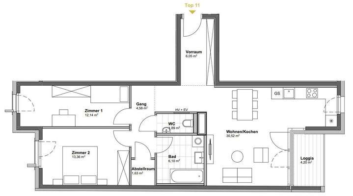
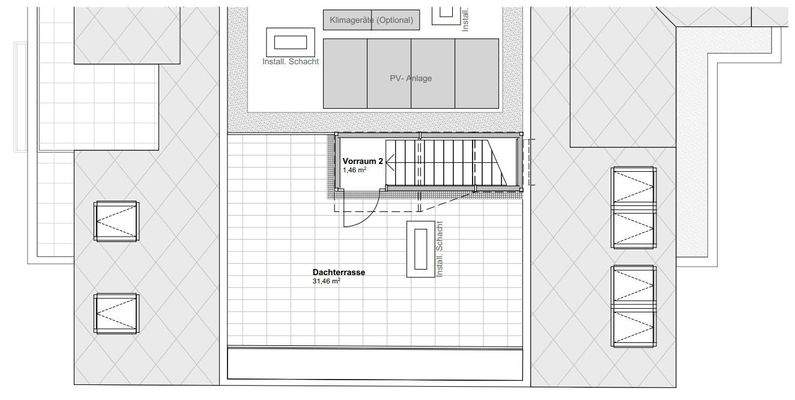
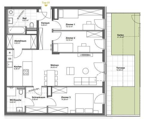
- Gemütliche 1- bis 3-Zimmer-Apartments sowie luxuriöse 4-Zimmer-Wohnungen mit Garten oder Dachterrassen
- Wohnflächen von...
Preisinformation
10 Tiefgaragenstellplätze, Miete je: 28.000,00 EUR
Weitere Informationen
Sonstiges
Projekt Homepage - https://wohn3.at/de/immobilien/david-59-erstklassige-eigentums-anlegerwohnungen-mit-1-4-zimmern-und-freiflaechen-in-top-zentraler-lage-0e97a531
Stichworte
Tiefgarage vorhanden, Nord-Ost-Süd-West-Balkon/Terrasse, Anzahl Terrassen: 1, Anzahl der Wohneinheiten: 41, 8 Etagen, Distanz...
Anbieter der Immobilie

Wohn3 Team GmbH
Weyrgasse 8/3, 1030 WIEN
Online-ID: 2lhr65d
Referenznummer: 6999
Finde Angebote wie dieses
Günstige Immobilienfinanzierung einfach online berechnen
Persönliches Angebot berechnenWarum sehe ich diese Werbung? – Du siehst diese Werbung basierend auf Deiner Navigation auf unserer Website und der von Dir verwendeten Suchkriterien.
Diese Werbung wird bezahlt von durchblicker
Werbung melden
Hier geht es zu unserem Impressum, den Allgemeinen Geschäftsbedingungen, den Hinweisen zum Datenschutz und nutzungsbasierter Online-Werbung.