
EHL Immobilien GmbH
Frau Julie Wittrich
+43 ···
Nr. anzeigenPreise & Kosten
Provision für Käufer
Provisionsfrei für den Käufer
Die Wohnung
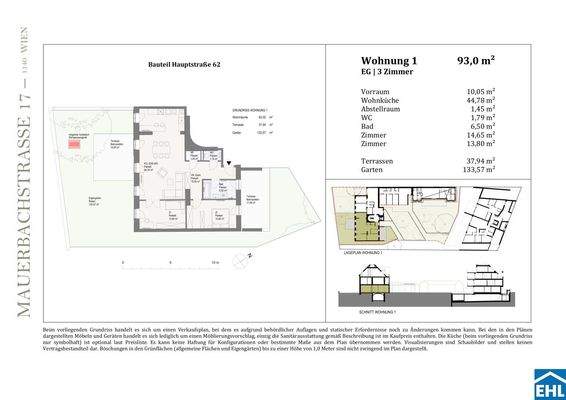
Wohnungslage
Erdgeschoss
Bezug
1. Quartal 2026
Wohnanlage
Energie & Heizung
Warum sehe ich diese Anzeige? – Du siehst diese Anzeige basierend auf Ihrer Navigation auf unserer Website und den Suchkriterien, die du verwendet hast.
Heizwärmebedarf (HWB)
58,10 kWh/(m²·a)
Gesamtenergieeffizienz (fGEE)
0,91
Weitere Energiedaten
Heizungsart
Fußbodenheizung, Luft-/Wasser-Wärmepumpe
Details
Objektbeschreibung
Wohnen im malerischen "Hawei" - Exklusives Neubauprojekt in der Mauerbachstraße
In einer der idyllischsten und zugleich charmantesten Lagen Wiens entsteht ein außergewöhnliches Immobilienprojekt, das keine Wünsche offen lässt. In der Mauerbachstraße, im beliebten Viertel Hadersdorf-Weidlingau - von den Bewohnern...
Weitere Informationen
Stichworte
Nord-Ost-Ost-Süd-Balkon/Terrasse, Rolladen, Anzahl der Badezimmer: 1, Anzahl der separaten WCs: 1, Anzahl Terrassen: 1, Balkon-Terrassen-Fläche: 37,94 m², Gartenfläche: 133,57 m², Bundesland: Wien, 5 Etagen, Wohnungsnr.: 1
Dokumente
Anbieter der Immobilie
EHL Immobilien GmbH
Prinz-Eugen-Straße 8-10, 1040 WIEN
Online-ID: 2lhs35g
Referenznummer: OBGC2024091214151201379d72fd5c0
Finde Angebote wie dieses
Günstige Immobilienfinanzierung einfach online berechnen
Persönliches Angebot berechnenWarum sehe ich diese Werbung? – Du siehst diese Werbung basierend auf Deiner Navigation auf unserer Website und der von Dir verwendeten Suchkriterien.
Diese Werbung wird bezahlt von durchblicker
Werbung melden
Hier geht es zu unserem Impressum, den Allgemeinen Geschäftsbedingungen, den Hinweisen zum Datenschutz und nutzungsbasierter Online-Werbung.