




Produktionshalle zum Kauf • als Kapitalanlage geeignet875000 €1.545 m² • 13.519 m² Grundstück
875000 €
1.545 m² • 13.519 m² Grundstück
Im Alleinauftrag: Gewerbeliegenschaft mit Bürogebäude und Warmhalle vor den Toren der Landeshauptstadt
Merkmale
- 13.519 m² Grundstück
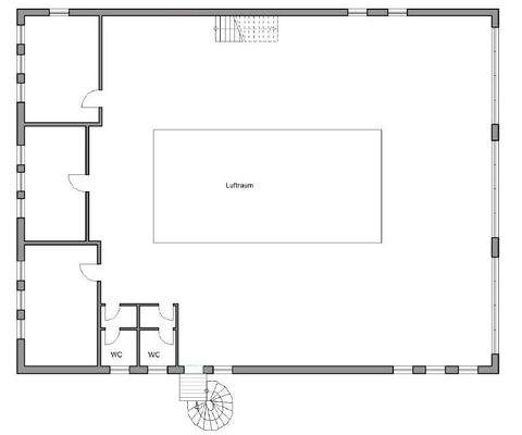
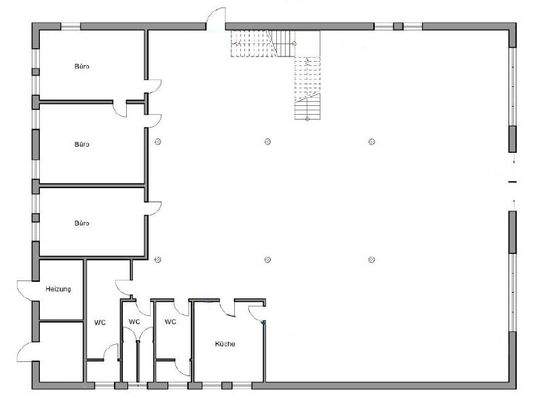
Grundrisse
Grundrisse
1 / 2
Realisiere Dein Projekt
Bausubstanz und Energie
Energieausweis
Endenergiebedarf (Wärme)
Endenergiebedarf (Strom)
- Baujahr2000
- Zustand der ImmobilieGepflegt
- EnergieträgerGas
Preisdetails
Kaufpreis
875000 €
Provision für Käufer
5,95% inkl. MwSt. Weitere Informationen siehe Provisionshinweis.
Geschätzte Gesamtkosten
927.063 €1
Kaufpreis
875.000 €
Kaufnebenkosten
52.063 €
2Provision für Käufer (5,95%)
52.063 €
1Der angezeigte Wert ist eine automatisch berechnete Schätzung von immowelt.
2Bei den Angaben handelt es sich um ortsübliche Werte. Individuelle Kosten können abweichen.
Lage

Biederitz (39175)
Der Anbieter hat die genaue Adresse nicht freigegeben
Weitere Informationen
Weitere Services
Lust auf eine Besichtigung?
Eine Frage zur Immobilie?
Ăśber den Anbieter
Aengevelt Immobilien GmbH & Co KGMaklerbĂĽro
Kennedydamm 55/Ross-Strasse, 40476 DĂĽsseldorf
Partnerschaft

Herr André BühligDein Kontakt
Online-ID: 2lhst5r
Referenznummer: 8267354
Wie zufrieden bist du mit dieser Seite (nicht mit der Immobilie selbst)?




