

Anteon Immobilien GmbH & Co. KG
Herr Nik Butzbach
+49 ···
Nr. anzeigenPreise & Kosten
Provision für Mieter
provisionspflichtig für den Mieter: anteon.de/agb
Warum sehe ich diese Anzeige? – Du siehst diese Anzeige basierend auf Ihrer Navigation auf unserer Website und den Suchkriterien, die du verwendet hast.
Büro-/Praxisfläche
Kategorie
Bürofläche
Bezug
kurzfristig
Details
Objektbeschreibung
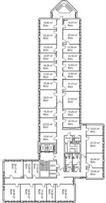
Grundrisse, die genauen Flächen und Etagen finden Sie bei den Ergänzenden Links weiter unten ?
Ausstattung
Festgelegte Ausstattung:
- besetzter Empfang
- Kantine
- Personenaufzug
- öffenbare Fenster
- außenliegender Sonnenschutz
- E-Ladesäulen
Variable Ausstattung:
- Antistatischer Teppichboden
- Küche
- Cat 7 Verkabelung
Diese Ausstattungsdetails können in der Regel im Gespräch mit den...
Preisinformation
20 Stellplätze, Miete je: 75,00 EUR
Nebenkosten pro qm: 5,00 EUR
Weitere Informationen
Sonstiges
Sie finden es schwer, dass richtige Objekt oder die richtige Fläche für Ihre Anforderung im Immobilienscout zu finden? Unsere entwickelte Methode für die Gestaltung eines effizienten und strukturierten Arbeitsprozesses erspart Ihnen bei Ihrer Suche viel Zeit und Sie können sich derweil auf Ihr Kerngeschäft...
Anbieter der Immobilie
Anteon Immobilien GmbH & Co. KG
Ernst-Schneider-Platz 1, 40212 Düsseldorf

Online-ID: 2lhvb5x
Referenznummer: 90708#HEEC70
Finde Angebote wie dieses
Hier geht es zu unserem Impressum, den Allgemeinen Geschäftsbedingungen, den Hinweisen zum Datenschutz und nutzungsbasierter Online-Werbung.