

Ostseemakler GmbH
Herr Oliver Nolte
046 ···
Nr. anzeigenPreise & Kosten
Provision für Käufer
zzgl. 3,57% Käuferprovision inkl. MwSt.
Lage
Die Gemeinde Busdorf gehört zum Amt Haddeby und befindet sich südlich von Schleswig. Innerhalb von 5 Minuten sind Sie direkt an der Schlei. Das Gebiet ist touristisch voll erschlossen und zieht jedes Jahr viele Besucher in die Region.
Im Norden von Busdorf befindet sich der Busdorfer Teich und die Schlei. Im Osten der...
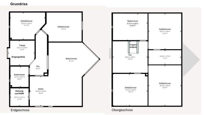
Das Haus
Kategorie
Einfamilienhaus
Baujahr
1999
Bezug
sofort
Energie & Heizung
Warum sehe ich diese Anzeige? – Du siehst diese Anzeige basierend auf Ihrer Navigation auf unserer Website und den Suchkriterien, die du verwendet hast.
Energieausweistyp
Verbrauchsausweis
Gebäudetyp
Wohngebäude
Baujahr laut Energieausweis
1999
Wesentliche Energieträger
GAS
Gültigkeit
bis 09.10.2034
Effizienzklasse
B
Endenergieverbrauch
74,90 kWh/(m²·a)
Weitere Energiedaten
Energieträger
Gas
Heizungsart
offener Kamin, Zentralheizung
Details
Objektbeschreibung
Willkommen in diesem liebevoll konzipierten Einfamilienhaus aus dem Jahr 1999, das durch seine großzügige Raumaufteilung und durchdachte Gestaltung besticht. Schon beim Betreten des Grundstücks wird der einladende Charme dieses Hauses spürbar: Eine behagliche Holzveranda vor der Eingangstür schafft eine warme Atmosphäre und...
Ausstattung
- schnelle Anbindung an die A7 und nach Schleswig
- Obergeschoss kann separiert werden (Anschlüsse für Einliegerwohnung sind vorhanden)
- offene und helle Räume
- Bodentiefe Fenster im Wohn- und Essbereich
- Holzveranda vor der Eingangstür
- Terrasse in Westausrichtung
- kleiner Balkon
- schöner...
Preisinformation
1 Carportplatz
Weitere Informationen
Sonstiges
Auf den öffentlichen Portalen steht lediglich ein Teil unseres großen und vielfältigen Angebotes. Weitere Immobilien und interessante Informationen rund um die Immobilie finden Sie auf unserer besuchenswerten Homepage ostseemakler.de
Die Eigentümer legen großen Wert darauf, dass Besichtigungstermine...
Anbieter der Immobilie

Ostseemakler GmbH
Geeler Weg , 24864 Brodersby

Online-ID: 2lhwk5b
Referenznummer: 196914
Finde Angebote wie dieses
Hier geht es zu unserem Impressum, den Allgemeinen Geschäftsbedingungen, den Hinweisen zum Datenschutz und nutzungsbasierter Online-Werbung.