

Mehrfamilienhaus zum Kauf1575000 €3.176 €/m²16 Zimmer • 495,9 m² • 604 m² Grundstück
1575000 €
3.176 €/m²
16 Zimmer • 495,9 m² • 604 m² Grundstück
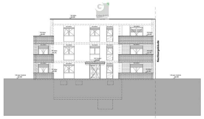
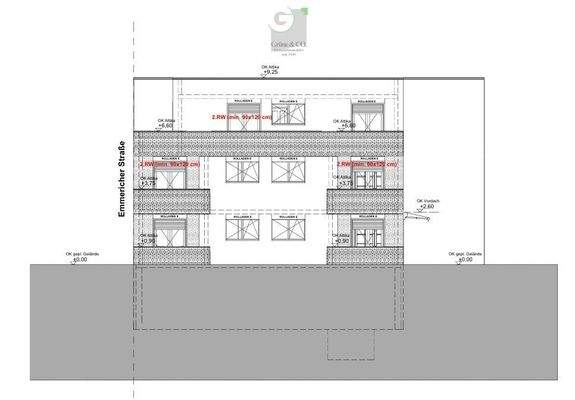
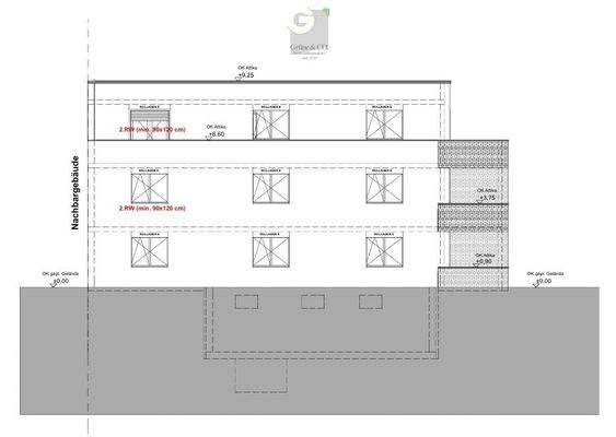
Projektiertes Mehrfamilienhaus in Duisburg Meiderich!
Merkmale
- 604 m² Grundstück
- Keller
- 8 Stellplätze: 8 Außen-Stellplätze
- Balkon
- voll erschlossen
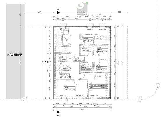
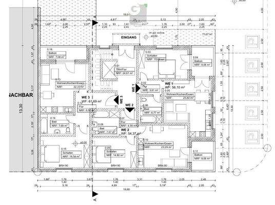
Grundrisse
Grundrisse
1 / 11
Realisiere Dein Projekt
Bausubstanz und Energie
Möchtest du Details zum Energieverbrauch?

- Baujahr2026
- Zustand der ImmobilieProjektiert
- EnergieträgerLuft-/Wasser-Wärmepumpe
Preisdetails
Kaufpreis
1575000 €
3.175,79 €/m²
Provision für Käufer
3 % des Kaufpreises zzgl. 19 % MwSt.
Weitere Preisinformationen
8 Stellplätze
Geschätzte Gesamtkosten
1.756.125 €1
Kaufpreis
1.575.000 €
Kaufnebenkosten
181.125 €
2Notarkosten (1,5%)
23.625 €
Grunderwerbsteuer (6,5%)
102.375 €
Provision für Käufer (3%)
47.250 €
Grundbucheintrag (0,5%)
7.875 €
1Der angezeigte Wert ist eine automatisch berechnete Schätzung von immowelt.
2Bei den Angaben handelt es sich um ortsübliche Werte. Individuelle Kosten können abweichen.
Lage

Emmericher Straße 85, Obermeiderich, Duisburg (47138)
Weitere Informationen
Weitere Services
Lust auf eine Besichtigung?
Eine Frage zur Immobilie?
Über den Anbieter
Uerdinger Str. 61, 47441 Moers
Alexandra ReintjesDein Kontakt
Online-ID: 25W6YYECI471
Referenznummer: 2154-2025

Grüne & Co. RDM Immobilienmakler seit 1939
Wie zufrieden bist du mit dieser Seite (nicht mit der Immobilie selbst)?

