
München | Sotheby’s International Realty
Frau Shania Kremhöller
+ 4 ···
Nr. anzeigenPreise & Kosten
Provision für Käufer
provisionsfrei
Lage
1B-Lage
Die Immobilie befindet sich in zentraler Lage in München Altstadt-Lehel, einem der wirtschaftlich bedeutendsten und lebenswertesten Stadtteile. Die unmittelbare Umgebung zeichnet sich durch eine hohe Passantenfrequenz, eine etablierte Einzelhandelsstruktur und eine ausgezeichnete Infrastruktur aus.
Nur...
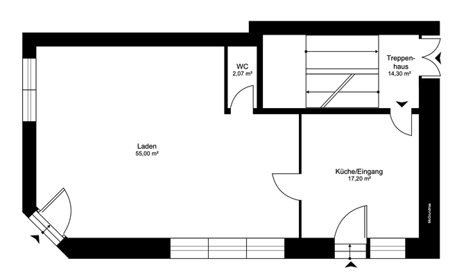
Die Ladenfläche
Baujahr
1984
Erdgeschoss
Energie & Heizung
Warum sehe ich diese Anzeige? – Du siehst diese Anzeige basierend auf Ihrer Navigation auf unserer Website und den Suchkriterien, die du verwendet hast.
Wärme
Energieausweistyp
Verbrauchsausweis
Gebäudetyp
Nicht-Wohngebäude
Wesentliche Energieträger
Gas
Gültigkeit
29.01.2018 bis 28.01.2028
Endenergieverbrauch (Wärme)
125,50 kWh/(m²·a)
Weitere Energiedaten
Energieträger
Gas
Heizungsart
Zentralheizung
Details
Objektbeschreibung
Zum Verkauf steht eine äußerst gepflegte Einzelhandelsimmobilie in zentraler Lage von München. Die Fläche befindet sich in einem lebendigen, stark frequentierten Stadtteil mit hoher Sichtbarkeit und optimaler Anbindung an den öffentlichen Nahverkehr.
Ob Einzelhandel, Dienstleistungsfläche oder Showroom - die Immobilie...
Ausstattung
- Zentrale Lage in München Altstadt-Lehel mit hoher Passantenfrequenz
- Vielseitige Nutzungsmöglichkeiten: Einzelhandel, Dienstleistung, Showroom
- Modernisierte Fläche mit funktionaler, gepflegter Ausstattung
- Großzügige Schaufensterflächen für optimale Präsentation und viel Tageslicht
- Flexible Raumaufteilung...
Weitere Informationen
Sonstiges
Homepage - https://muenchen-sothebysrealty.com
Stichworte
Gesamtfläche: 74,00 m², Bundesland: Bayern, modernisiert: 2010, Distanz zum Flughafen: 46.56, Distanz zum Hauptbahnhof: 2.19, Distanz zum Bus: 1.27
Anbieter der Immobilie
Online-ID: 2lj575e
Referenznummer: 6452
Finde Angebote wie dieses
Hier geht es zu unserem Impressum, den Allgemeinen Geschäftsbedingungen, den Hinweisen zum Datenschutz und nutzungsbasierter Online-Werbung.