




Laden zur Miete9,20 €/m²1.200 m² Verkaufsfläche
9,20 €
/m²
1.200 m² Verkaufsfläche
* Top-Verkaufs- und Ausstellungsfläche inkl. Büroräume in attraktiver, gesuchter Lage zu vermieten *
Merkmale
- Bezug: nach Vereinbarung
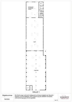
Grundrisse
Grundrisse
1 / 1
Realisiere Dein Projekt
Bausubstanz und Energie
Energieausweis
Endenergiebedarf (Wärme)
- Baujahr1964
- Zustand der Immobilierenoviert / saniert
- EnergieträgerElektro
Mietkosten
Nettomiete zzgl. Nebenkosten
9,20 €/m²
9,20 €
Provision fĂĽr Mieter
23.800,00 EUR (inkl. MwSt.) inkl. MwSt.
Die Maklercourtage für den Mieter beträgt 20.000,00 EUR zuzüglich der gesetzlichen MwSt., somit gesamt 23.800,00 EUR.
Die Maklercourtage für den Mieter beträgt 20.000,00 EUR zuzüglich der gesetzlichen MwSt., somit gesamt 23.800,00 EUR.
Kaution
25000 €
Weitere Preisinformationen
Die Maklercourtage für den Mieter beträgt 20.000,00 EUR zuzüglich der gesetzlichen MwSt., somit gesamt 23.800,00 EUR., Nettokaltmiete: 9,20 EUR
Lage

Neckarau, Mannheim (68199)
Der Anbieter hat die genaue Adresse nicht freigegeben
Weitere Informationen
Weitere Services
Lust auf eine Besichtigung?
Eine Frage zur Immobilie?
Ăśber den Anbieter
Garant Immobilien Heilbronn GmbHMaklerbĂĽro
WollhausstraĂźe 121, 74074 Heilbronn
Partnerschaft
BĂĽro MannheimDein Kontakt
Online-ID: 2lj5l5q
Referenznummer: 741.066
Wie zufrieden bist du mit dieser Seite (nicht mit der Immobilie selbst)?




