

Aengevelt Immobilien GmbH & Co KG
Herr Tobias Barth
+49 ···
Nr. anzeigenPreise & Kosten
Provision für Mieter
provisionsfrei
Abschreibung/Anlage
Denkmalschutz-Afa
Warum sehe ich diese Anzeige? – Du siehst diese Anzeige basierend auf Ihrer Navigation auf unserer Website und den Suchkriterien, die du verwendet hast.
Lage
Der denkmalgeschützte Bürokomplex ist südwestlich der Leipziger Innenstadt, im aufstrebenden Stadtteil Plagwitz, gelegen. Das Umfeld ist geprägt von einem kreativen Mix aus Gewerbe und Wohnen. Die in der Nähe befindliche Karl-Heine-Straße ist eine der Hauptausfallstraßen der Stadt und stellt die Verbindung an das Stadtzentrum...
Büro-/Praxisfläche
Baujahr
1930
Bezug
3. Quartal 2025
Energie & Heizung
Warum sehe ich diese Anzeige? – Du siehst diese Anzeige basierend auf Ihrer Navigation auf unserer Website und den Suchkriterien, die du verwendet hast.
Weitere Energiedaten
Energieträger
Fernwärme
Details
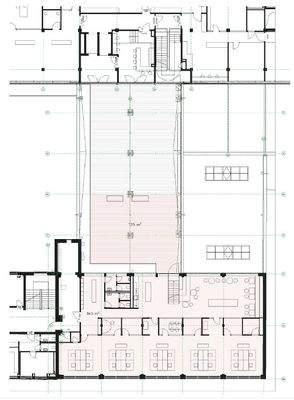
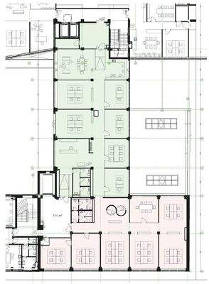
Objektbeschreibung
Die Konsumzentrale, ein bedeutendes Bauwerk des Expressionismus, wurde 1930 von Fritz Höger entworfen und wird aktuell umfassend revitalisiert. Das Areal vereint historische Architektur mit moderner Infrastruktur.
Bis Q3 2025 entstehen 150 zusätzliche Stellplätze, zudem stehen Parkmöglichkeiten im nahegelegenen Parkhaus...
Ausstattung
Ausstattung:
- Büroflächen mit Hohlraumboden,
- außenliegendem Sonnenschutz (an der Südfassade), innenliegendem Blendschutz (an der Nordfassade) sowie bis zu 30% Glastrennwände,
- Glasfaseranschluss,
- vollflächiger mechanischer Be- u. Entlüftung, Heiz- u. Kühldeckensystem
Geplante Nutzungen:
-...
Weitere Informationen
Stichworte
Gesamtfläche: 4.640,00 m², 7 Etagen, modernisiert: 2025
Anbieter der Immobilie
Aengevelt Immobilien GmbH & Co KG
Kennedydamm 55/Ross-Strasse, 40476 Düsseldorf

Online-ID: 2lj7r5r
Referenznummer: 40640
Finde Angebote wie dieses
Hier geht es zu unserem Impressum, den Allgemeinen Geschäftsbedingungen, den Hinweisen zum Datenschutz und nutzungsbasierter Online-Werbung.