

BOREAS Immobilien GmbH
Herr Stefan Maurer
+49 ···
Nr. anzeigenPreise & Kosten
Provision für Käufer
provisionsfrei
Lage
Die Doppelhaushälften entstehen in der Christian-Herbst-Straße in Mundingen, einem familienfreundlichen Ortsteil von Emmendingen. Die Lage verbindet ruhiges Wohnen im Grünen mit einer sehr guten Anbindung an die Stadt Emmendingen, Freiburg sowie die gesamte Rheinebene.
Einkauf & Versorgung
-Supermärkte (Edeka...
Das Haus
Kategorie
Doppelhaushälfte
Energie & Heizung
Warum sehe ich diese Anzeige? – Du siehst diese Anzeige basierend auf Ihrer Navigation auf unserer Website und den Suchkriterien, die du verwendet hast.
Weitere Energiedaten
Heizungsart
Fußbodenheizung, Luft-/Wasser-Wärmepumpe
Details
Objektbeschreibung
In der beliebten Wohnlage von Mundingen, in der Christian-Herbst-Straße, entstehen moderne Doppelhaushälften, die höchsten Ansprüchen an Qualität, Komfort und Energieeffizienz gerecht werden. Die Häuser werden nach den Vorgaben des Gebäudeenergiegesetzes (GEG) errichtet und erfüllen zusätzlich den Standard "Klimafreundliches...
Ausstattung
Bauweise & Gebäudehülle
-Massivbauweise mit Kalksandstein-/Betonwänden
-Wärmedämmverbundsystem mit eingefärbtem Kunstharzputz
-Schallschutz gemäß DIN 4109-5 (erhöhte Anforderungen)
-Satteldach mit Gauben, Betondachsteinen und Velux-Dachfenstern
Innenausbau
-Fußbodenheizung in allen Wohnräumen (EG, OG...
Preisinformation
2 Stellplätze, Kaufpreis je: 17.500,00 EUR
Weitere Informationen
Stichworte
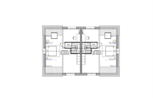
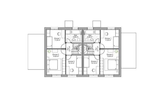
Stellplatz vorhanden, Anzahl der Schlafzimmer: 4, Anzahl der Badezimmer: 1, Anzahl Balkone: 1, Bundesland: Baden-Württemberg, 2 Etagen
Anbieter der Immobilie
BOREAS Immobilien GmbH
In den Engematten 13, 79286 Glottertal

Online-ID: 2ljap5k
Referenznummer: Haus Nr. 2
Finde Angebote wie dieses
Hier geht es zu unserem Impressum, den Allgemeinen Geschäftsbedingungen, den Hinweisen zum Datenschutz und nutzungsbasierter Online-Werbung.