

NIEDERKRON Immobilien , Inh. Stefan Niederkron
Herr Stefan Niederkron
082 ···
Nr. anzeigenPreise & Kosten
Provision für Käufer
3,57 % inkl. MwSt.
Mit der Verkäuferseite haben wir einen provisionspflichtigen Maklervertrag, nach §656c BGB, in gleicher Höhe abgeschlossen.
Abschreibung/Anlage
als Kapitalanlage geeignet
Lage
Königsbrunn ist die größte Stadt im schwäbischen Landkreis Augsburg und liegt im Osten des bayerischen Regierungsbezirks Schwaben. Das Stadtgebiet befindet sich auf dem Lechfeld, südlich von Augsburg zwischen den Alpenflüssen Lech und Wertach. Königsbrunn ist zwar eine der jüngsten Siedlungen Bayerns, dennoch mit der...
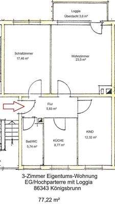
Die Wohnung
Wohnungslage
Erdgeschoss
Bezug
sehr gut vermietet
Derzeitige Nutzung
vermietet
Wohnanlage
Energie & Heizung
Warum sehe ich diese Anzeige? – Du siehst diese Anzeige basierend auf Ihrer Navigation auf unserer Website und den Suchkriterien, die du verwendet hast.
Gebäudetyp
Wohngebäude
Weitere Energiedaten
Energieträger
Öl
Heizungsart
Zentralheizung
Details
Objektbeschreibung
Objektbeschreibung
Die vermietete Wohnung liegt in einem TOP gepflegten Mehrfamilienhaus mit insgesamt 16 Parteien. Die Anlage aus dem Baujahr 1965 wurde stetig renoviert/modernisiert.
Die Außenbalkone wurden erst vor Kurzem komplett erneuert. Diese sind mit einer Frostglasumrandung und einem einseitigen...
Weitere Informationen
Besichtigungstermine
Besichtigungen nach Terminvergabe in Absprache mit dem Mieter jederzeit möglich.
Die Wohnung ist aktuell noch vermietet. Der aktuelle Mieter plant aber bereits seinen Auszug. Somit wäre die Wohnung für Eigennutzer, aber auch für künftige Vermieter sehr...
Anbieter der Immobilie
NIEDERKRON Immobilien , Inh. Stefan Niederkron
Bgm.-Wohlfarth-Str. 104, 86343 Königsbrunn

Online-ID: 2ljet5d
Referenznummer: #20250034
Finde Angebote wie dieses
Hier geht es zu unserem Impressum, den Allgemeinen Geschäftsbedingungen, den Hinweisen zum Datenschutz und nutzungsbasierter Online-Werbung.