
StarREAL OG
Frau Maria Grace Deutschbauer
+43 ···
Nr. anzeigenPreise & Kosten
Provision für Käufer
3% des Kaufpreises zzgl. 20% USt.
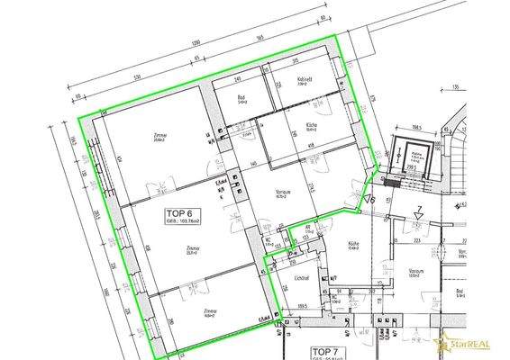
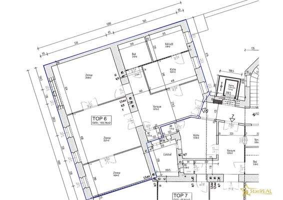
Die Wohnung
Wohnungslage
1. Geschoss
Bezug
SOFORT
Wohnanlage
Energie & Heizung
Warum sehe ich diese Anzeige? – Du siehst diese Anzeige basierend auf Ihrer Navigation auf unserer Website und den Suchkriterien, die du verwendet hast.
Heizwärmebedarf (HWB)
106,40 kWh/(m²·a)
Gesamtenergieeffizienz (fGEE)
1,99
Weitere Energiedaten
Energieträger
Gas
Heizungsart
Etagenheizung
Details
Objektbeschreibung
ALTBAUJUWEL MIT CHARME UND POTENTIAL! SANIERUNG NACH EIGENEN VORSTELLUNGEN.
FORMIDABLE WOHNLAGE! JOSEFSTÄDTER STRASSE UMS ECK.
HERVORRAGENDE INFRASTRUKTUR UND ÖFFENTLICHE ANBINDUNG.
Diese charmante 3,5-Zimmer-Eigentumswohnung liegt in einem Altbau aus dem Jahr 1902. Das Haus bietet den typischen Wiener...
Weitere Informationen
Stichworte
Nutzfläche: 103,84 m², Anzahl der Badezimmer: 1, Anzahl der separaten WCs: 1, Bundesland: Wien, 5 Etagen
Anbieter der Immobilie
StarREAL OG
Rennweg 78/2, 1030 WIEN
Online-ID: 2ljgr5w
Referenznummer: OBGC20251008104634557b8fcf96274
Finde Angebote wie dieses
Günstige Immobilienfinanzierung einfach online berechnen
Persönliches Angebot berechnenWarum sehe ich diese Werbung? – Du siehst diese Werbung basierend auf Deiner Navigation auf unserer Website und der von Dir verwendeten Suchkriterien.
Diese Werbung wird bezahlt von durchblicker
Werbung melden
Hier geht es zu unserem Impressum, den Allgemeinen Geschäftsbedingungen, den Hinweisen zum Datenschutz und nutzungsbasierter Online-Werbung.