

horta Immobilien GmbH & Co. KG
Herr Marco Horta
+49 ···
Nr. anzeigenPreise & Kosten
Provision für Käufer
Bei Kaufvertragsabschluss wird eine Courtage in Höhe von 3,57% inkl. MwSt. an uns fällig.
Lage
In einer der schönsten Lagen am Bodensee sind alte Geschichte und die Moderne im Einklang. Unzählige Möglichkeiten zur Freizeitgestaltung werden Ihnen durch den See, die unmittelbare Nähe zu den Schweizer- und Österreicher Alpen, sowie durch die Sehenswürdigkeiten im Umland geboten. Die Universität vor Ort ist ein Garant für...
Die Wohnung
Kategorie
Penthouse
Wohnanlage
Energie & Heizung
Warum sehe ich diese Anzeige? – Du siehst diese Anzeige basierend auf Ihrer Navigation auf unserer Website und den Suchkriterien, die du verwendet hast.
Energieausweis: für diesen Gebäudetyp nicht notwendig
Details
Objektbeschreibung
Das Wohngebäude in der bekannten Seestraße ist ein historisches Gebäude mit einem charakteristischen architektonischen Stil.
Der prächtige Bau an der Seestraße in Konstanz, heute ein beeindruckendes architektonisches Schmuckstück, wurde ursprünglich 1896 von dem Stuttgarter Architekten Otto Tafel als Frauen- und...
Ausstattung
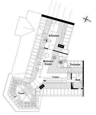
Bei der zum Verkauf stehenden Immobilie, handelt es sich um den Speicher des beschriebenen Gebäudes, der die Fantasie mit seinen Möglichkeiten beflügelt. Mit einer bereits vorliegenden Baugenehmigung samt Plänen für eine Abgeschlossenheitsbescheinigung eröffnet sich die Aussicht auf zwei wunderschöne Dachgeschosswohnungen...
Weitere Informationen
Sonstiges
Alle Angaben beruhen auf Informationen des Eigentümers. Für die Richtigkeit werden keine Gewähr und Haftung übernommen. Wir bitten um Ihr Verständnis, dass nur schriftliche Anfragen mit vollständiger Wohnadresse, E-Mail-Adresse und Telefonnummer bearbeitet werden.
Anbieter der Immobilie
horta Immobilien GmbH & Co. KG
Mainaustr. 32, 78464 Konstanz

Online-ID: 2ljhh57
Referenznummer: A4749
Finde Angebote wie dieses
Hier geht es zu unserem Impressum, den Allgemeinen Geschäftsbedingungen, den Hinweisen zum Datenschutz und nutzungsbasierter Online-Werbung.