

ImmoUnion24 GmbH
Herr Karl-Heinz Erhard
017 ···
Nr. anzeigenPreise & Kosten
Verhandlungsbasis
Provision für Käufer
3,57% vom Kaufpreis (inkl. MwSt.)
Lage
Das angebotene Reihenhaus befindet sich im beliebten Nürnberger Stadtteil Höfen, im Westen der Stadt.
Die Lage verbindet die Vorteile einer ruhigen, gewachsenen Wohngegend mit einer sehr guten Anbindung an die Innenstadt und das Umland.
Einkaufsmöglichkeiten für den täglichen Bedarf, Bäckereien, Apotheken...
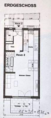
Das Haus
Kategorie
Reihenmittelhaus
Geschosse
3 Geschosse
Baujahr
2020
Energie & Heizung
Warum sehe ich diese Anzeige? – Du siehst diese Anzeige basierend auf Ihrer Navigation auf unserer Website und den Suchkriterien, die du verwendet hast.
Energieausweistyp
Bedarfsausweis
Gebäudetyp
Wohngebäude
Wesentliche Energieträger
GAS
Gültigkeit
bis 07.04.2031
Effizienzklasse
A+
Endenergiebedarf
27,40 kWh/(m²·a)
Weitere Energiedaten
Energieträger
Gas
Heizungsart
Fußbodenheizung, Zentralheizung
Details
Objektbeschreibung
Dieses neuwertige Reihenhaus aus dem Baujahr 2020 überzeugt durch seine moderne Architektur, hochwertige Ausstattung und eine ruhige Lage im Nürnberger Stadtteil Höfen.
Mit lichtdurchfluteten Räumen, einem offenen Grundriss und vielen durchdachten Details bietet es Wohnkomfort für die ganze...
Ausstattung
- Neuwertiges Reihenhaus, Baujahr 2020
- Moderne Architektur & hochwertige Ausstattung
- Ruhige Lage im Nürnberger Stadtteil Höfen
- Lichtdurchflutete Räume & offener Grundriss
- Großzügiger Wohn- und Essbereich mit Zugang zur sonnigen Terrasse und pflegeleichtem Spielgarten
-...
Preisinformation
1 Carportplatz, Kaufpreis: 17.000,00 EUR
1 Stellplatz, Kaufpreis: 9.000,00 EUR
Soll-Mieteinnahmen pro Monat: 1.800,00 EUR
Ist-Mieteinnahmen pro Monat: 1.800,00 EUR
Weitere Informationen
Sonstiges
Die ImmoUnion24 GmbH erhält vom Käufer bei Abschluss eines durch die ImmoUnion24 GmbH vermittelten und notariell beurkundeten Kaufvertrages zu dieser Immobilie 3,57 % inkl. MwSt. Käuferprovision. Die Käuferprovision wird berechnet aus dem Gesamterwerbspreis und ist verdient am Tag der notariellen Beurkundung des...
Anbieter der Immobilie
ImmoUnion24 GmbH
Eckentaler Straße 12, 90542 Eckental

Online-ID: 2ljhs5t
Referenznummer: 1126
Finde Angebote wie dieses
Hier geht es zu unserem Impressum, den Allgemeinen Geschäftsbedingungen, den Hinweisen zum Datenschutz und nutzungsbasierter Online-Werbung.