
Sorglosmakler GmbH
Herr Matthias Meisner
039 ···
Nr. anzeigenPreise & Kosten
Provision für Käufer
Die Käuferprovision beträgt 4,17 % inkl. 19 % MwSt. vom notariellen Kaufpreis. inkl. MwSt.
Lage
Damals Grenzgebiet, heute im Herzen Deutschlands.
Der Ortsteil Offleben der Stadt Helmstedt liegt direkt an der Grenze zwischen Niedersachsen und Sachsen-Anhalt. Die Städte Schöningen und Helmstedt sind nur wenige Kilometer entfernt. Über verschiedene Bundesstraßen in der Nähe sowie die Autobahn 2 bei Helmstedt sind...
Das Haus
Kategorie
Einfamilienhaus
Baujahr
1800
Energie & Heizung
Warum sehe ich diese Anzeige? – Du siehst diese Anzeige basierend auf Ihrer Navigation auf unserer Website und den Suchkriterien, die du verwendet hast.
Energieausweistyp
Verbrauchsausweis
Gebäudetyp
Wohngebäude
Baujahr laut Energieausweis
1800
Wesentliche Energieträger
GAS
Gültigkeit
bis 05.08.2032
Effizienzklasse
F
Endenergieverbrauch
175,30 kWh/(m²·a)
Weitere Energiedaten
Energieträger
Gas
Heizungsart
offener Kamin, Zentralheizung
Details
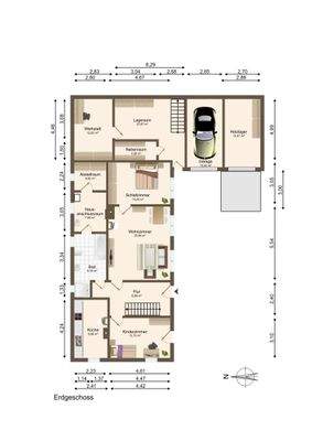
Objektbeschreibung
Das Erdgeschoss mit barrierefreiem Zugang vom eigenen Hof aus ist großzügig geschnitten und bietet ein behindertengerechtes Tageslichtbad mit Wanne und ebenerdiger Dusche. Mit umfangreichen Sanierungen zwischen 2014 und 2016 steht hier einem baldigen Einzug nichts im Wege. Auch eine gewerbliche Nutzung ist im Erdgeschoss...
Ausstattung
- mehrere Kamin- und Kachelöfen
- autarke Beheizung möglich
- behindertengerechtes Bad
- ebenerdiger Zugang möglich
- Lounge mit riesiger Fensterfront
- Glasfaseranschluss
- Gewerbliche Nutzung möglich
- Ausbaureserve im Dachgeschoss
Preisinformation
2 Carportplätze
1 Garagenstellplatz
Weitere Informationen
Sonstiges
Alle Daten in diesem Exposé beruhen auf Angaben des Verkäufers. Die Objektangaben wurden mit großer Sorgfalt zusammengestellt. Für die Richtigkeit der Verkäufer-, Anbieter- und Angebotsangaben können wir keine Haftung übernehmen. Irrtümer bleiben vorbehalten.
Ich weise darauf hin, dass ausschließlich...
Anbieter der Immobilie
Sorglosmakler GmbH
Hohendodeleber Str. 4, 39110 Magdeburg
Online-ID: 2ljhx54
Referenznummer: MMTP-EFH12
Finde Angebote wie dieses
Hier geht es zu unserem Impressum, den Allgemeinen Geschäftsbedingungen, den Hinweisen zum Datenschutz und nutzungsbasierter Online-Werbung.