

Alpenland Gemeinnützige Bau-, Wohn- und Siedlungsgenossenschaft reg.Gen. m.b.H
Frau VECERA Daniela
+43 ···
Nr. anzeigenPreise & Kosten
Warum sehe ich diese Anzeige? – Du siehst diese Anzeige basierend auf Ihrer Navigation auf unserer Website und den Suchkriterien, die du verwendet hast.
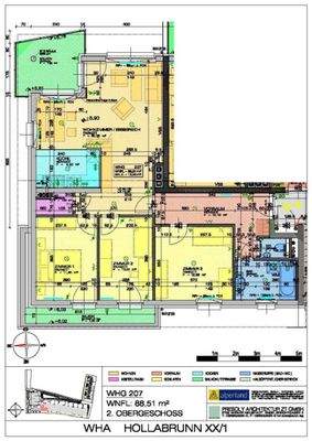
Die Wohnung
Bezug
31.03.2026
Wohnanlage
Details
Objektbeschreibung
HOLLABRUNN, ZENTRUMSNAHE. Nur wenige hundert Meter vom Herzen der Einkaufs- und Schulstadt (Gymnasium, HTL) entfernt und nur eine halbe Bahnstunde von Wien verbindet die 2009 errichtete Wohnhausanlage städtischen Komfort mit dem Lebensgefühl des Weinviertels. Die freundlichen Wohnungen mit Flächen von 71 bis 96 m² sind mit...
Preisinformation
Finanzierungsbeitrag: EUR 15,771.67
Weitere Informationen
Sonstiges
Angaben Gesamtmiete excl. Heizkosten, inkl. Betriebskosten-Akonto, inkl. PWK-Stellplatz. Alle Wohnungsangebote finden Sie auf unserer Homepage: www.alpenland.ag.
Alpenland Homepage - https://www.alpenland.ag/wohneinheit/IM00100005700
Stichworte
Anzahl der Badezimmer: 1, Anzahl der separaten WCs...
Anbieter der Immobilie
Alpenland Gemeinnützige Bau-, Wohn- und Siedlungsgenossenschaft reg.Gen. m.b.H
Siegfried Ludwig-Platz 1, 3100 ST. PÖLTEN

Online-ID: 2ljmu5z
Referenznummer: 1000/00008440/00001207
Finde Angebote wie dieses
Hier geht es zu unserem Impressum, den Allgemeinen Geschäftsbedingungen, den Hinweisen zum Datenschutz und nutzungsbasierter Online-Werbung.