

HONNEF Immobilien
Frau Mandy Brendel
036 ···
Nr. anzeigenPreise & Kosten
Provision für Käufer
4,76 % inkl. MwSt.
Lage
Mitten im Thüringer Wald, umgeben von sieben Tälern und eingebettet in eines der größten Waldgebiete Deutschlands liegt Tambach-Dietharz. Hier wird die pure Natur mitgeliefert. Aber auch als wirtschaftlicher Standort genießt Tambach-Dietharz hohen Stellenwert. Mittelständige Unternehmen der Zubehör- und Kunststofffertigung...
Die Wohnung
Bezug
nach Vereinbarung
Derzeitige Nutzung
vermietet
Wohnanlage
Energie & Heizung
Warum sehe ich diese Anzeige? – Du siehst diese Anzeige basierend auf Ihrer Navigation auf unserer Website und den Suchkriterien, die du verwendet hast.
Energieausweistyp
Verbrauchsausweis
Gebäudetyp
Wohngebäude
Baujahr laut Energieausweis
1995
Wesentliche Energieträger
Gas
Gültigkeit
21.04.2010 bis 20.04.2020
Endenergieverbrauch
140,00 kWh/(m²·a) - Warmwasser enthalten
Weitere Energiedaten
Energieträger
Gas
Heizungsart
Zentralheizung
Details
Objektbeschreibung
Kurzbeschreibung
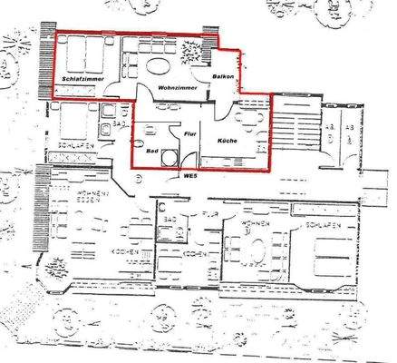
Individuelle Dachgeschosswohnung
Objekt
Diese sanierte Stadtvilla, aufgeteilt in 8 Wohnungen und eine Gewerbeeinheit im Souterrain nebst Keller und Stellplätzen bietet Ihnen eine attraktive Kapitalanlage umgeben von schönster Natur.
Die zu verkaufende Wohnung liegt im Dachgeschoss und...
Ausstattung
Die Ausstattung können Sie den Bildern entnehmen- die Wohnung verfügt über Fliesen und im Wohnzimmer liegt Laminat in Holzoptik.
Weitere Informationen
Sonstiges
Baujahr: 1995
Energieausweistyp: Energieverbrauchskennwert
Energiekennwert: 140 kWh/(m²*a)
Energie mit Warmwasser: Ja
Heizungsart: Zentralheizung
Befeuerung/Energieträger: Gas
Der aktuelle Wirtschaftsplan beinhaltet 3.552,00 €/a, zahlbar in Monatsraten von 296,00 €. Davon sind nach...
Anbieter der Immobilie

Online-ID: 2ljnt5m
Referenznummer: 501418
Finde Angebote wie dieses
Hier geht es zu unserem Impressum, den Allgemeinen Geschäftsbedingungen, den Hinweisen zum Datenschutz und nutzungsbasierter Online-Werbung.