Wohnzone Schlössl GmbH

Herr Robert Kranzinger

Büro- und Praxisräume in Ried im Innkreis

€ 15,50
Preis/m²
k.A.
Bürofläche
k.A.
Teilbare Fläche
1
Zimmer

Der Anbieter dieses Objekts hat gegenüber der AVIV Germany GmbH als Betreiber dieses Online-Marktplatzes erklärt, nicht als Unternehmer im Sinne des § 1 KSchG zu handeln. Die im Verbraucherschutzrecht der Union verankerten Verbraucherrechte (insbesondere Informationspflichten und Rücktritts- bzw. Widerrufsrechte) finden auf den Vertrag zwischen dem Anbieter des Objekts und Ihnen (dem Interessenten) keine Anwendung.

Gewerblicher Anbieter

Der Anbieter dieses Objekts hat gegenüber der AVIV Germany GmbH als Betreiber dieses Online-Marktplatzes erklärt, als Unternehmer im Sinne des § 1 KSchG zu handeln.

AdresseStraße nicht freigegeben
4910 Ried im Innkreis 
Auf Karte ansehen

Preise & Kosten

Preis/m² € 15,50 Nettokaltmiete € 2.690 Betriebskosten € 434

Provision für Mieter

Bitte beachte, das Angebot kann bei Vertragsabschluss die Zahlung einer Provision beinhalten. Weitere Informationen erhältst Du vom Anbieter.

Lage

Büro-/Praxisfläche

Kategorie

Praxisfläche

Geschoss

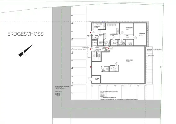
Erdgeschoss

  • Erstbezug, Neubau

Energie & Heizung

Weitere Energiedaten

Heizungsart

Fußbodenheizung

Details

Objektbeschreibung

Sie sind auf der Suche nach einer geeigneten Büro- oder Praxisfläche in Ried im Innkreis in Oberösterreich? Dann haben wir genau das Richtige für Sie! Diese wunderschöne Immobilie im Erdgeschoss eines modernen Gebäudes bietet Ihnen eine Fläche von insgesamt 173.57m² und ist somit perfekt für Ihre beruflichen Bedürfnisse...

Mehr anzeigen

Preisinformation

Nettokaltmiete: 2.690,00 EUR

Weitere Informationen

Stichworte
Carport vorhanden, Stellplatz vorhanden, Wohnfläche: 173,57 m², Anzahl der separaten WCs: 2, Bundesland: Oberösterreich, Wohnungsnr.: TOP 1

Anbieter der Immobilie

Partner

Wohnzone Schlössl GmbH

Herzog Odilo-Straße 4, 5310 MONDSEE

user

Herr Robert Kranzinger

Dein Ansprechpartner

Anbieter-Website Anbieter-Profil Anbieter-Impressum

Online-ID: 2ljr55f

Referenznummer: OBGC20250121093054151018c7b3bef

Finde Angebote wie dieses

imageimageimage

Hier geht es zu unserem Impressum, den Allgemeinen Geschäftsbedingungen, den Hinweisen zum Datenschutz und nutzungsbasierter Online-Werbung.