
Schweizer Immobilien Service GmbH
Frau Petra Ruppitsch
+49 ···
Nr. anzeigenPreise & Kosten
Provision für Käufer
3,57 %
3,57 % des Kaufpreises inkl. gesetzl. Mwst.
Lage
Mit rund 27.000 Einwohnern liegt Weinstadt (seit 1979 große Kreisstadt) ca. 15 km östlich von Stuttgart. Drei der 5 Teilorte sind direkt an die B29 angeschlossen, die beiden Teilorte Schnait und Strümpfelbach liegen romantisch in einem herrlichen Tal mit zahlreichen Weinbergen. Der zweitkleinste Teilort Schnait selbst hat...
Das Haus
Kategorie
Einfamilienhaus
Baujahr
1940
Bezug
nach Vereinbarung
Energie & Heizung
Warum sehe ich diese Anzeige? – Du siehst diese Anzeige basierend auf Ihrer Navigation auf unserer Website und den Suchkriterien, die du verwendet hast.
Energieausweistyp
Bedarfsausweis
Gebäudetyp
Wohngebäude
Gültigkeit
bis 16.12.2034
Effizienzklasse
H
Endenergiebedarf
359,10 kWh/(m²·a)
Weitere Energiedaten
Energieträger
Öl
Details
Objektbeschreibung
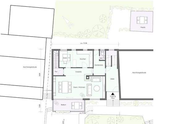
Willkommen in diesem einladenden Einfamilienhaus, das im Jahr 1940 in Massivbauweise errichtet wurde. Das Haus wurde 1975 und 1980 weiter ausgebaut und renoviert und bietet eine Wohnfläche von ca. 153 m² auf 2 Etagen. Es ist zudem unterkellert.
Der Zustand des Gebäudes ist solide und gut. Es sind Sanierungsmaßnahmen...
Ausstattung
Bad mit Badewanne
2 separate WC´s
Balkon
Freisitz hinter dem Haus
Untergeschoss mit viel Nutzfläche und zusätzlichen Badezimmer und WC
Garage
und vieles mehr...
Fordern Sie das ausführliche Exposé an
Preisinformation
1 Garagenstellplatz
Anbieter der Immobilie
Online-ID: 2ljsx5r
Referenznummer: 069
Finde Angebote wie dieses
Hier geht es zu unserem Impressum, den Allgemeinen Geschäftsbedingungen, den Hinweisen zum Datenschutz und nutzungsbasierter Online-Werbung.