

Skyline-Immobilien.com GmbH
Herr/Frau Vertrieb Skyline Immobilien
061 ···
Nr. anzeigenPreise & Kosten
Provision für Käufer
3,57 % des Kaufpreises inkl. MwSt.
Lage
Die Lorsbacher Straße 1 befindet sich in einer zentrumsnahen Lage im Stadtteil Hofheim, der mit einer hervorragenden Verkehrsanbindung und einer Vielzahl von Infrastrukturangeboten überzeugt. Die Lage bietet eine ideale Kombination aus urbanem Leben und gleichzeitig ruhigerem Wohnen, was sie sowohl für Geschäfts- als auch für...
Die Wohnung
Wohnungslage
2. Geschoss
Derzeitige Nutzung
vermietet
Wohnanlage
Energie & Heizung
Warum sehe ich diese Anzeige? – Du siehst diese Anzeige basierend auf Ihrer Navigation auf unserer Website und den Suchkriterien, die du verwendet hast.
Energieausweistyp
Verbrauchsausweis
Gebäudetyp
Wohngebäude
Wesentliche Energieträger
GAS
Gültigkeit
bis 06.03.2028
Effizienzklasse
E
Endenergieverbrauch
138,80 kWh/(m²·a)
Weitere Energiedaten
Energieträger
Gas
Heizungsart
Zentralheizung
Details
Objektbeschreibung
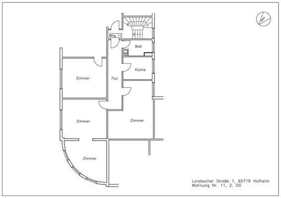
Diese gepflegte 3-Zimmerwohnung mit ca. 83?m² Wohnfläche befindet sich in einem etablierten Mehrfamilienhaus in zentraler Lage von Hofheim. Sie ist aktuell vermietet und bietet somit eine attraktive Möglichkeit für Kapitalanleger, die auf Stabilität und Entwicklungspotenzial setzen.
Die Raumaufteilung ist durchdacht...
Ausstattung
- 2. Obergeschoss
- Bodenbelag (Laminat)
- Bodenbelag (Fliesen)
- Bodenbelag (Teppich)
- Tageslichtbad
- Trockenraum
- Fahrradkeller
- eigener Kellerraum
- Stellplätze können nach Bedarf erworben werden
Modernisierungen:
- Heizungsanlage wurde 2022 erneuert
- Fassade wird gedämmt
-...
Weitere Informationen
Sonstiges
BEWERTUNG IHRER IMMOBILIE
Unsere DEKRA-Zertifizierten Gutachter ermitteln Ihnen kostenfrei den marktgerechten Preis für Ihr Haus oder Ihre Wohnung und beraten Sie ausführlich in allen Fragen rund um Ihre Immobilie oder Ihr Grundstück.
Kontaktieren Sie uns noch heute, wir freuen uns auf...
Anbieter der Immobilie

Online-ID: 2ljxj5b
Referenznummer: H8225
Finde Angebote wie dieses
Hier geht es zu unserem Impressum, den Allgemeinen Geschäftsbedingungen, den Hinweisen zum Datenschutz und nutzungsbasierter Online-Werbung.