

best advice finance AG
Frau Susan Zimmermann
+49 ···
Nr. anzeigenPreise & Kosten
Provision für Käufer
1,19% inkl. MwSt.
Lage
Euba liegt am südöstlichen Rand von Chemnitz und grenzt an die Stadtteile Adelsberg sowie Hilbersdorf, inklusive der Siedlungen Beutenberghäuser und Anton-Günther-Siedlung. Seit seiner erstmaligen urkundlichen Erwähnung im Jahr 1206 hat sich Euba zu einem lebendigen Wohngebiet entwickelt. Selbst nach der Eingemeindung nach...
Das Haus
Kategorie
Bungalow
Baujahr
2024
Bezug
sofort
Energie & Heizung
Warum sehe ich diese Anzeige? – Du siehst diese Anzeige basierend auf Ihrer Navigation auf unserer Website und den Suchkriterien, die du verwendet hast.
Weitere Energiedaten
Haustyp
Massivhaus
Heizungsart
Luft-/Wasser-Wärmepumpe
Details
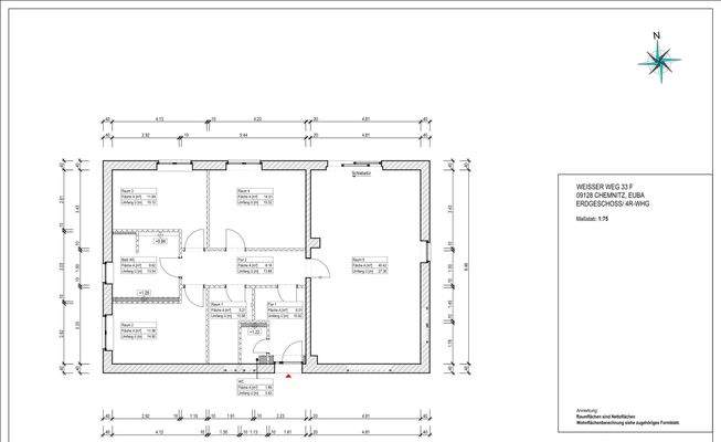
Objektbeschreibung
Sie erwerben ein hochwertig ausgestattetes Einfamilienhaus im Bungalowstil, welches derzeit im charmanten Chemnitzer Stadtteil Euba neu errichtet wird.
Das Haus befindet sich auf einem großzügigen Grundstück von insgesamt 587 m² am Rand einer kleinen, idyllischen Wohnsiedlung - in unmittelbarer Nähe zum Zeißigwald. Die...
Ausstattung
Dieser nicht unterkellerte, eingeschossige Bungalow besticht durch eine großzügige Wohnfläche von circa 108 m².
Das Herzstück des Gebäudes bildet der beeindruckende, lichtdurchflutete Wohn- und Essbereich von etwa 40 m² Größe. Durch die Südost-Ausrichtung genießen Sie hier eine optimale Sonneneinstrahlung und einen...
Weitere Informationen
Sonstiges
Wir freuen uns, Ihnen die Immobilie persönlich zeigen zu dürfen. Rufen Sie uns an und wir vereinbaren einen gemeinsamen Besichtigungstermin.
Wir weisen darauf hin, dass alle Daten und Objektangaben vom Verkäufer stammen. Für die Richtigkeit dieser Angaben, Irrtümer oder Änderungen können wir keine Haftung...
Anbieter der Immobilie

best advice finance AG
Abteiweg 1, 09113 Chemnitz

Online-ID: 2ljxv5m
Referenznummer: 124259568#Mudj5M
Finde Angebote wie dieses
Hier geht es zu unserem Impressum, den Allgemeinen Geschäftsbedingungen, den Hinweisen zum Datenschutz und nutzungsbasierter Online-Werbung.