
ohne-makler.net - Immobilien selbst vermarkten
Privat vom Eigentümer
Kontaktiere den Anbieter schriftlich, es ist keine Telefonnummer hinterlegt.
Preise & Kosten
Provision für Käufer
provisionsfrei
Lage
Das Einfamilienhaus befindet sich im Stadtteil Südweststadt von Pforzheim, einer ruhigen und gewachsenen Wohnlage, die durch ihre hügelige Struktur und schöne Ausblicke besonderen Charme erhält. Gleichzeitig ist das Stadtzentrum mit Fußgängerzone und Marktplatz schnell erreichbar - in nur etwa 5 Minuten mit dem Fahrrad...
Das Haus
Kategorie
Einfamilienhaus
Baujahr
1957
Bezug
nach Absprache
Energie & Heizung
Warum sehe ich diese Anzeige? – Du siehst diese Anzeige basierend auf Ihrer Navigation auf unserer Website und den Suchkriterien, die du verwendet hast.
Energieausweistyp
Bedarfsausweis
Gebäudetyp
Wohngebäude
Effizienzklasse
G
Endenergiebedarf
236,00 kWh/(m²·a)
Weitere Energiedaten
Energieträger
Öl
Heizungsart
offener Kamin, Zentralheizung
Details
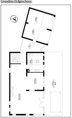
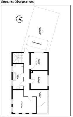
Objektbeschreibung
Das großzügige Einfamilienhaus aus dem Jahr 1957 befindet sich in der Südweststadt von Pforzheim auf einem ca. 458 m² großen Grundstück, das durch eine zusätzliche Pachtfläche von ca. 360 m² erweitert wird. Die Umgebung ist geprägt von Einfamilienhäusern, grünen Straßenzügen und einer...
Ausstattung
Terrasse, Wintergarten, Garten, Keller, Dachterrasse, Vollbad, Duschbad, Einbauküche, Kamin, Parkett, Teppichboden, Fliesen
Bemerkungen:
Grundstück: ca. 458 m² + Pachtfläche ca. 360 m²
Wohnfläche: ca. 253,5 m² auf drei Ebenen
Böden: Eichenparkett, Fliesen, Teppichboden
Fenster: Holzfenster mit...
Preisinformation
2 Garagenstellplätze
Weitere Informationen
Sonstiges
Heizungsart: Zentralheizung
Energieträger: Öl
Alle Nebenkosten wie die Grunderwerbssteuer in Höhe von 5 % des Kaufpreises sowie die Notar- und Gerichtskosten trägt der Käufer.
Makleranfragen nicht erwünscht. Nach § 7 UWG sind unaufgeforderte Kontaktaufnahmen durch Makler ohne...
Dokumente
Anbieter der Immobilie
ohne-makler.net - Immobilien selbst vermarkten
Humboldtstr. 25 A, 21509 Glinde
Privat vom Eigentümer
Dein Ansprechpartner
Kontaktiere den Anbieter schriftlich, es ist keine Telefonnummer hinterlegt.
Online-ID: 2lk7t5w
Referenznummer: 397263
Finde Angebote wie dieses
Hier geht es zu unserem Impressum, den Allgemeinen Geschäftsbedingungen, den Hinweisen zum Datenschutz und nutzungsbasierter Online-Werbung.