
DER IMMO TIP Vermittlung von Immobilien GmbH
Herr Christian Müller
035 ···
Nr. anzeigenPreise & Kosten
Provision für Käufer
3,57%
Lage
Die Immobilie befindet sich in Radeberg, im Ortsteil Ullersdorf, nahe der Dresdner Heide.
Ullersdorf ist ein malerischer Ortsteil von Radeberg und liegt in der reizvollen Umgebung südlich von Dresden. Diese Region besticht durch ihre naturnahe Lage mit Wäldern, Feldern und sanften Hügeln. Ullersdorf bietet eine...
Das Haus
Kategorie
Einfamilienhaus
Bezug
in Abstimmung
Details
Objektbeschreibung
Kurzbeschreibung
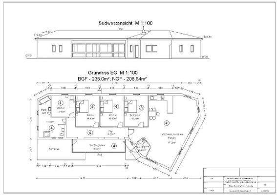
Einfamilienhaus im Bungalowstil in Ullersdorf zum Kauf | sanierungsbedürftig | mit Entwurfsplanung
Objekt
Zum Verkauf steht ein aktuell sanierungsbedürftiges und vollständig entkerntes Einfamilienhaus im Bungaloswstil, mit einer Gesamtnutzfläche von ca. 203 m². Die Immobilie befindet sich auf...
Ausstattung
* sanierungsbedürftig
* Entwurfsplanung vorhanden
* eine Ebene
Weitere Informationen
Sonstiges
Befeuerung/Energieträger: Gas
Der Energieausweis befindet sich in Erstellung. Aktuell besitzt das Gebäude keine Heiztechnik.
Hinweis: Fehlende Angaben zum Energieausweis gemäß Energiesparverordnung 2014 ( EnEV ) begründen sich durch Nichtangabepflicht bei Denkmalschutzobjekten, Grundstücken...
Anbieter der Immobilie
DER IMMO TIP Vermittlung von Immobilien GmbH
Semperstr. 1, 01069 Dresden
Online-ID: 2lk975s
Referenznummer: 66032
Finde Angebote wie dieses
Hier geht es zu unserem Impressum, den Allgemeinen Geschäftsbedingungen, den Hinweisen zum Datenschutz und nutzungsbasierter Online-Werbung.