

BAVARIA WERTIMMOBILIEN
Herr Robert Fürbeck
+49 ···
Nr. anzeigenPreise & Kosten
Provision für Käufer
provisionsfrei
Lage
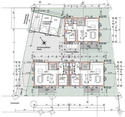
Die 3 Neubauhäuser befinden sich in der Dorfenstr. 8 in Oberding im Ortsteil Schwaig. Idyllisch gelegen nahe des Ortskerns und der Dorfen, einem Flusssystem der Isar. Schwaig mit ca. 800 Einwohner, als Ortsteil der Gemeinde Oberding mit ca. 6.700 ist Einwohnern, bietet einen ländlichen Charakter in Verbindung mit modernen...
Das Haus
Kategorie
Einfamilienhaus
Baujahr
2025
Derzeitige Nutzung
frei
Energie & Heizung
Warum sehe ich diese Anzeige? – Du siehst diese Anzeige basierend auf Ihrer Navigation auf unserer Website und den Suchkriterien, die du verwendet hast.
Energieausweistyp
Bedarfsausweis
Gebäudetyp
Wohngebäude
Gültigkeit
bis 16.04.2033
Effizienzklasse
A+
Endenergiebedarf
20,00 kWh/(m²·a)
Weitere Energiedaten
Energieträger
Elektro
Heizungsart
Fußbodenheizung, Luft-/Wasser-Wärmepumpe, Zentralheizung
Details
Objektbeschreibung
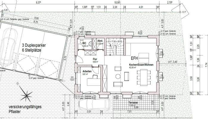
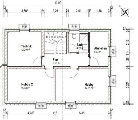
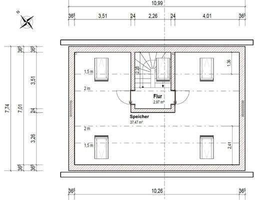
Hier genießen Sie viel Platz für die ganze Familie: Das massiv gebaute Einfamilienhaus bietet auf 4 Etagen über ca. 260 m² Wohn- und Nutzfläche, ausgestattet mit Fußbodenheizung und Wärmepumpe. In idyllischer Lage im Ortskern von Schwaig und in praktischer Nähe zum Flughafen München entstanden zwei moderne Doppelhäuser und...
Preisinformation
2 Duplex-Stellplätze, Kaufpreis je: 20.000,00 EUR
1 Stellplatz, Kaufpreis: 10.000,00 EUR
Weitere Informationen
Sonstiges
Der Kaufpreis das Einfamilienhaus inkl. Garagen (2 x 1,90 m Duplex-Stellplätzen) und 1 x Außenstellplatz (Sondernutzungsrecht) beträgt 949.000,00 EUR.
Das Haus ist fertiggestellt und kann jederzeit unkompliziert besichtigt werden. Bitte nutzen Sie für den Erstkontakt gerne das Kontaktformular. Wir senden...
Dokumente
Anbieter der Immobilie

Online-ID: 2lkde59
Referenznummer: RE-SW-EF01
Finde Angebote wie dieses
Hier geht es zu unserem Impressum, den Allgemeinen Geschäftsbedingungen, den Hinweisen zum Datenschutz und nutzungsbasierter Online-Werbung.