

TOP SPEED Immobilien e.U.
Herr Thomas Lasser
+43 ···
Nr. anzeigenPreise & Kosten
Provision für Käufer
3 % zzgl. 20% USt. inkl. MwSt.
Lage
Das Haus befindet sich in Forstau in erhöhter Hanglage mit herrlichem Panoramablick und viel Sonnenschein. Die Top-Skigebiete Fageralm und Reiteralm sind in wenigen Minuten erreichbar, was es ideal für Wintersportfreunde macht. Die beliebte Ski- und Urlaubsregion Schladming ist nur 10 Minuten entfernt, und die Stadt Salzburg...
Das Haus
Kategorie
Einfamilienhaus
Baujahr
2009
Bezug
nach Vereinbarung
Energie & Heizung
Warum sehe ich diese Anzeige? – Du siehst diese Anzeige basierend auf Ihrer Navigation auf unserer Website und den Suchkriterien, die du verwendet hast.
Heizwärmebedarf (HWB)
18,00 kWh/(m²·a)
Weitere Energiedaten
Heizungsart
Fußbodenheizung, Luft-/Wasser-Wärmepumpe, Zentralheizung
Details
Objektbeschreibung
Modernes Traumhaus in Forstau in sonniger, erhöhter Hanglage mit beeindruckendem Panoramablick - nur wenige Minuten von den Skigebieten Fageralm und Reiteralm entfernt.
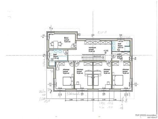
Die Immobilie verfügt über vier helle Schlafzimmer, einen großzügigen offenen Wohn- und Essbereich mit modernem Design sowie einen beheizten Pool.
Das...
Ausstattung
Die Immobilie ist wie folgt aufgeteilt:
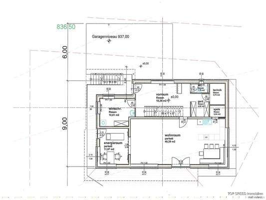
Untergeschoss
Carport
Lagerraum: 17,60 m²
Erdgeschoss:
Vorraum: 18,29 m²
Garderobe: 4,90 m²
Wirtschaftsraum: 10,61 m²
Technik: 3,74 m²
Speis: 2,04 m²
Energieraum: 11,97...
Preisinformation
2 Carportplätze
4 Stellplätze
Weitere Informationen
Stichworte
Süd-West-Balkon/Terrasse, Anzahl der Schlafzimmer: 4, Anzahl der Badezimmer: 2, Anzahl der separaten WCs: 1, Anzahl Terrassen: 1, Bundesland: Salzburg, 2 Etagen
Anbieter der Immobilie

Online-ID: 2lkef5v
Referenznummer: 2095
Finde Angebote wie dieses
Günstige Immobilienfinanzierung einfach online berechnen
Persönliches Angebot berechnenWarum sehe ich diese Werbung? – Du siehst diese Werbung basierend auf Deiner Navigation auf unserer Website und der von Dir verwendeten Suchkriterien.
Diese Werbung wird bezahlt von durchblicker
Werbung melden
Hier geht es zu unserem Impressum, den Allgemeinen Geschäftsbedingungen, den Hinweisen zum Datenschutz und nutzungsbasierter Online-Werbung.