

Dous Immobilien GmbH
Frau Andrea Dudszus
004 ···
Nr. anzeigenPreise & Kosten
Provision für Käufer
3,57 % inkl. MwSt.
Lage
Die hier angebotene Immobilie befindet sich in Handorf, ca. 10 km vor den Toren von Lüneburg. Die Gemeinde Handorf gehört zur Samtgemeinde Bardowick. In Handorf leben ca. 2000 Einwohner. Ein Kindergarten, sowie eine Grundschule befinden sich im Ort. Die weiterführenden Schulen in Bardowick und Lüneburg erreichen Ihre Kinder...
Das Haus
Kategorie
Einfamilienhaus
Baujahr
2016
Energie & Heizung
Warum sehe ich diese Anzeige? – Du siehst diese Anzeige basierend auf Ihrer Navigation auf unserer Website und den Suchkriterien, die du verwendet hast.
Energieausweistyp
Bedarfsausweis
Gebäudetyp
Wohngebäude
Baujahr laut Energieausweis
2016
Wesentliche Energieträger
ELECTRICITY
Gültigkeit
bis 22.05.2027
Effizienzklasse
A+
Endenergiebedarf
9,00 kWh/(m²·a)
Weitere Energiedaten
Haustyp
Massivhaus
Heizungsart
Luft-/Wasser-Wärmepumpe
Details
Objektbeschreibung
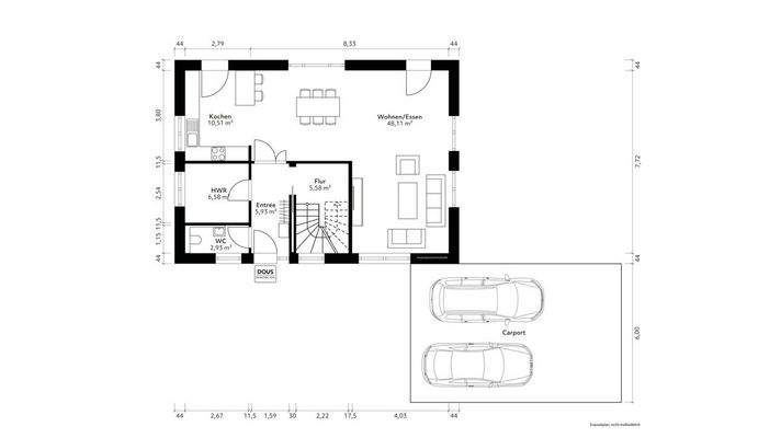
Dieses moderne und energieeffiziente Viebrockhaus aus dem Baujahr 2016 vereint zeitgemäße Architektur mit einem durchdachten Wohnkonzept und nachhaltiger Technik. Mit einer Wohnfläche von ca. 141 m² bietet es sowohl Familien als auch Paaren ein komfortables Zuhause, das viel Raum zur Entfaltung lässt und gleichzeitig ein...
Anbieter der Immobilie

Online-ID: 2lkhd5p
Referenznummer: W-K-LG-25-054
Finde Angebote wie dieses
Hier geht es zu unserem Impressum, den Allgemeinen Geschäftsbedingungen, den Hinweisen zum Datenschutz und nutzungsbasierter Online-Werbung.