

VR-Bank in Mittelbaden eG Geschäftsstelle Haueneberstein
Frau Annette Rast
004 ···
Nr. anzeigenPreise & Kosten
Provision für Käufer
3,57 % inkl. MwSt.
Lage
Baden-Baden, die bekannte Kurstadt im Nordwesten des Schwarzwaldes, vereint Charme, Tradition und moderne Lebensqualität. Die Stadt ist berühmt für ihre luxuriösen Thermen, das Casino und das weltbekannte Festspielhaus. Als Kultur- und Wellnessdestination zieht sie sowohl nationale als auch internationale Besucher...
Das Haus
Kategorie
Mehrfamilienhaus
Baujahr
1883
Energie & Heizung
Warum sehe ich diese Anzeige? – Du siehst diese Anzeige basierend auf Ihrer Navigation auf unserer Website und den Suchkriterien, die du verwendet hast.
Weitere Energiedaten
Energieträger
Elektro, Gas
Heizungsart
Zentralheizung
Details
Objektbeschreibung
Ensemble aus zwei Mehrfamilienhäusern in Baden-Baden
Objektbeschreibung:
Zum Verkauf steht ein Ensemble aus zwei gut erhaltenen Mehrfamilienhäusern in zentrumsnaher Lage von Baden-Baden, das insgesamt 9 Wohnungen sowie zahlreiche Stellplätze und Garagen umfasst. Ideal für Kapitalanleger, bieten die Gebäude stabile...
Ausstattung
- 9 Stellplätze im Innenhof
- Balkone und Dachterrasse
- 2 Garagen
- 1 Doppelparkgarage (2 Stellplätze)
Weitere Informationen
Stichworte
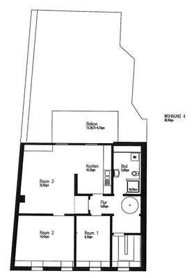
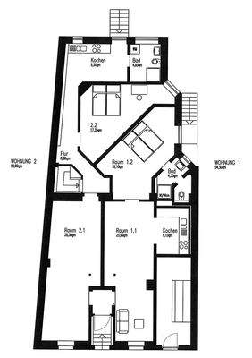
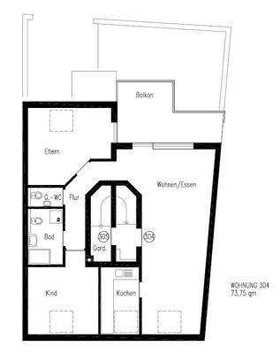
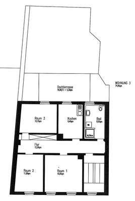
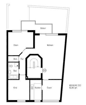
Anzahl Balkone: 5, Anzahl Terrassen: 1, 4 Etagen
Sonstiges: Etagenheizung
Anbieter der Immobilie
VR-Bank in Mittelbaden eG Geschäftsstelle Haueneberstein
Hügelsheimer Str. 6, 76473 Iffezheim

Online-ID: 2lkj552
Referenznummer: 1042
Finde Angebote wie dieses
Hier geht es zu unserem Impressum, den Allgemeinen Geschäftsbedingungen, den Hinweisen zum Datenschutz und nutzungsbasierter Online-Werbung.