
Müller & Bucher Immobilien-Treuhand GmbH
Herr Thomas Bucher
071 ···
Nr. anzeigenPreise & Kosten
Provision für Käufer
4 % aus beurkundetem Kaufpreis zuzüglich gesetzlicher Mehrwertsteuer
Lage
Bad Rappenau liegt verkehrsgünstig zwischen Heilbronn und Heidelberg mit direkter Anbindung an die Autobahn A6. Die Immobilie befindet sich in einer hervorragenden Gegend mit einer ausgezeichneten Infrastruktur und Nahversorgung. Öffentliche Verkehrsmittel sind fußläufig erreichbar. Die Lage bietet optimale Bedingungen für...
Das Objekt
Baujahr
1999
Bezug
Nach Absprache
Details
Objektbeschreibung
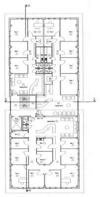
Diese hochwertige Gewerbeimmobilie in der gefragten Lage von Bad Rappenau bietet ca. 2.396m² Nutzfläche, die sich in moderne Büroflächen sowie anteilige Produktionsbereiche unterteilen. Das Objekt befindet sich in einem etablierten Ortsteil mit sehr guter Verkehrsanbindung und infrastruktureller Erschließung.
Die...
Weitere Informationen
Besichtigungstermine
Nur nach vorheriger Terminabsprache.
Dokumente
Anbieter der Immobilie
Müller & Bucher Immobilien-Treuhand GmbH
Moltkestr 10, 74072 Heilbronn
Online-ID: 2lkl35d
Referenznummer: 032/32-a
Finde Angebote wie dieses
Hier geht es zu unserem Impressum, den Allgemeinen Geschäftsbedingungen, den Hinweisen zum Datenschutz und nutzungsbasierter Online-Werbung.