
s REAL Steiermark Realservice für steir. Sparkassen Realitätenvermittlungs GmbH
Herr Markus Scholze
+43 ···
Nr. anzeigenPreise & Kosten
Provision für Käufer
Bitte beachte, das Angebot kann bei Vertragsabschluss die Zahlung einer Provision beinhalten. Weitere Informationen erhältst Du vom Anbieter.
Die Wohnung
Wohnungslage
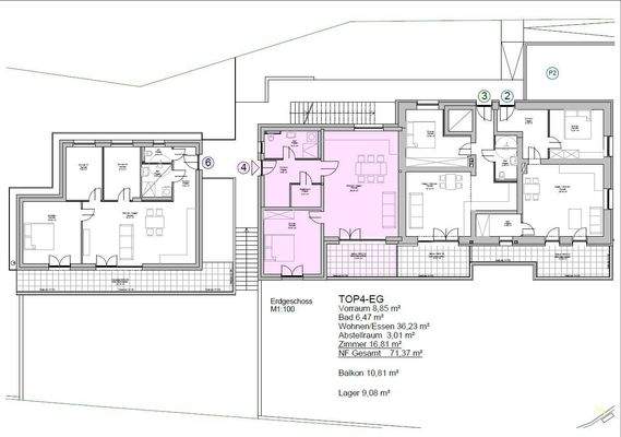
Erdgeschoss
Wohnanlage
Energie & Heizung
Warum sehe ich diese Anzeige? – Du siehst diese Anzeige basierend auf Ihrer Navigation auf unserer Website und den Suchkriterien, die du verwendet hast.
Heizwärmebedarf (HWB)
63,00 kWh/(m²·a)
Gesamtenergieeffizienz (fGEE)
0,81
Details
Objektbeschreibung
Baubeginn: Frühjahr 2026
Voraussichtliche Fertigstellung: Ende 2026
Parkplätze: Optional erhältlich (nicht im Kaufpreis enthalten)
Dieses Wohnbauprojekt vereint hochwertige Architektur, energieeffiziente Bauweise und modernen Wohnkomfort. Hier entsteht ein Zuhause für Menschen, die Wert auf Qualität, Design...
Weitere Informationen
Stichworte
Nutzfläche: 71,37 m², Anzahl der Badezimmer: 1, Anzahl der separaten WCs: 1, Anzahl Balkone: 1, Balkon-Terrassen-Fläche: 10,81 m², Kellerfläche: 9,08 m², Bundesland: Steiermark, 3 Etagen
Anbieter der Immobilie

s REAL Steiermark Realservice für steir. Sparkassen Realitätenvermittlungs GmbH
Sparkassenplatz 4 (Zentrale), 8010 GRAZ
Online-ID: 2lkmb5w
Referenznummer: OBGC2025101513562080739955d3849
Finde Angebote wie dieses
Günstige Immobilienfinanzierung einfach online berechnen
Persönliches Angebot berechnenWarum sehe ich diese Werbung? – Du siehst diese Werbung basierend auf Deiner Navigation auf unserer Website und der von Dir verwendeten Suchkriterien.
Diese Werbung wird bezahlt von durchblicker
Werbung melden
Hier geht es zu unserem Impressum, den Allgemeinen Geschäftsbedingungen, den Hinweisen zum Datenschutz und nutzungsbasierter Online-Werbung.