
ZELLMANN IMMOBILIEN GmbH
Frau Camilla Tunner
+43 ···
Nr. anzeigenPreise & Kosten
Provision für Käufer
15.084,00 € inkl. 20% USt.
Das Haus
Kategorie
Einfamilienhaus
Energie & Heizung
Warum sehe ich diese Anzeige? – Du siehst diese Anzeige basierend auf Ihrer Navigation auf unserer Website und den Suchkriterien, die du verwendet hast.
Heizwärmebedarf (HWB)
49,40 kWh/(m²·a)
Gesamtenergieeffizienz (fGEE)
0,75
Weitere Energiedaten
Haustyp
Fertighaus, Niedrigenergiehaus
Heizungsart
Fußbodenheizung, Luft-/Wasser-Wärmepumpe
Details
Objektbeschreibung
MODERNES EINFAMILIENHAUS IN STEINBRUNN - WOHNEN MIT QUALITÄT & KOMFORT
-------------------------
WOHNEN MIT STIL - IHR NEUES ZUHAUSE IM GRÜNEN
Diese modernen Einfamilienhäuser in Steinbrunn verbinden energieeffiziente Bauweise mit durchdachter Architektur und großzügigen Gärten. Belagsfertig...
Preisinformation
2 Stellplätze
Weitere Informationen
Stichworte
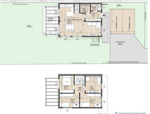
Stellplatz vorhanden, Süd-West-Balkon/Terrasse, Nutzfläche: 130,38 m², Anzahl der Badezimmer: 1, Anzahl der separaten WCs: 2, Anzahl Terrassen: 1, Balkon-Terrassen-Fläche: 17,31 m², Gartenfläche: 254,77 m², Bundesland: Burgenland, 2 Etagen
Anbieter der Immobilie
ZELLMANN IMMOBILIEN GmbH
Stuhlhofergasse 8, 1230 WIEN
Online-ID: 2lkmd58
Referenznummer: OBGC202508092216135177315347479
Finde Angebote wie dieses
Günstige Immobilienfinanzierung einfach online berechnen
Persönliches Angebot berechnenWarum sehe ich diese Werbung? – Du siehst diese Werbung basierend auf Deiner Navigation auf unserer Website und der von Dir verwendeten Suchkriterien.
Diese Werbung wird bezahlt von durchblicker
Werbung melden
Hier geht es zu unserem Impressum, den Allgemeinen Geschäftsbedingungen, den Hinweisen zum Datenschutz und nutzungsbasierter Online-Werbung.