
Gesine Richter Immobilien Hausverwaltung
Herr Berthold Hauschild
037 ···
Nr. anzeigenPreise & Kosten
Kaution
2 Monatsnettomieten
Provision für Mieter
Bitte beachte, das Angebot kann bei Vertragsabschluss die Zahlung einer Provision beinhalten. Weitere Informationen erhältst Du vom Anbieter.
Warum sehe ich diese Anzeige? – Du siehst diese Anzeige basierend auf Ihrer Navigation auf unserer Website und den Suchkriterien, die du verwendet hast.
Lage
Langenau ist ein Ortsteil der Großen Kreisstadt Brand-Erbisdorf in Sachsen.
In Brand-Erbisdorf sind alle Schulen vertreten, Grundschule, Oberschule und Gymnasium.
Gute Busverbindungen nach - Brand-Erbisdorf - Freiberg oder Richtung Eppendorf / Chemnitz.
10 km bis zur großen Kreisstadt Freiberg, 32 km bis Chemnitz...
Büro-/Praxisfläche
Kategorie
Bürogebäude
Bezug
sofort
Geschoss
Erdgeschoss
Energie & Heizung
Warum sehe ich diese Anzeige? – Du siehst diese Anzeige basierend auf Ihrer Navigation auf unserer Website und den Suchkriterien, die du verwendet hast.
Energieausweis: für diesen Gebäudetyp nicht notwendig
Weitere Energiedaten
Energieträger
Gas, Solar
Heizungsart
Fußbodenheizung, offener Kamin, Zentralheizung
Details
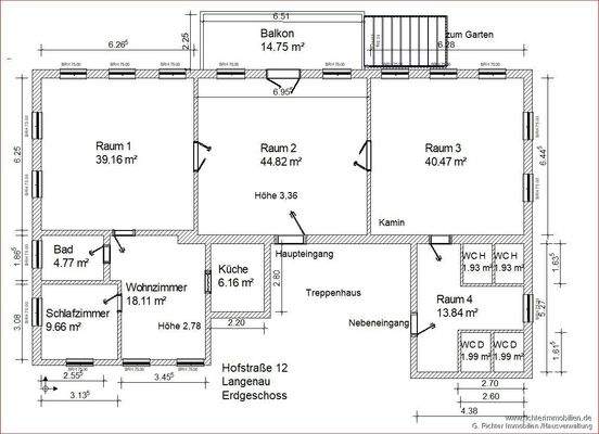
Objektbeschreibung
Arbeiten in ruhiger Lage wie in einem Schloss.
Diese repräsentativen Büroräume stehen zur sofortigen Anmietung.
Hochwertig, kernsanierte Anlage die keine Wünsche offen lässt.
Drei große Büroräume. Ein Raum mit Kamin und Zugang zum großen Balkon.
Der Balkon führt wiederum zu den Kfz-Stellplätzen.
In allen Räumen...
Preisinformation
1 Stellplatz, Miete: 25,00 EUR
Nettokaltmiete: 1.300,00 EUR
Weitere Informationen
Stichworte
Stellplatz vorhanden, Fahrradraum, Gesamtfläche: 191,00 m², Anzahl der Badezimmer: 1, Distanz zum Kindergarten: 0.10, Distanz zur Grundschule: 3.00, Distanz zur Realschule: 3.00, Distanz zum Gymnasium: 3.00, Distanz zur Autobahn: 26.00
Anbieter der Immobilie
Online-ID: 2lks855
Referenznummer: 186
Finde Angebote wie dieses
Hier geht es zu unserem Impressum, den Allgemeinen Geschäftsbedingungen, den Hinweisen zum Datenschutz und nutzungsbasierter Online-Werbung.