
EHL Immobilien GmbH
Frau Andrea PÖCHHACKER; MSc
+43 ···
Nr. anzeigenPreise & Kosten
Provision für Käufer
3% des Kaufpreises zzgl. 20% USt.
Lage
Neben der beeindruckenden Ausstattung und Energieeffizienz punktet dieses Investmentprojekt mit seiner Lage. Trotz idyllischer Grünruhelage ist es nur 16 Gehminuten von der historischen Kremser Altstadt entfernt. Darüber hinaus finden sich in der Nähe zahlreiche Supermärkte, Apotheken, Schulen und Kindergärten, die den Alltag...
Die Wohnung
Wohnungslage
Erdgeschoss
Bezug
4. Quartal 2024
Wohnanlage
Energie & Heizung
Warum sehe ich diese Anzeige? – Du siehst diese Anzeige basierend auf Ihrer Navigation auf unserer Website und den Suchkriterien, die du verwendet hast.
Heizwärmebedarf (HWB)
26,30 kWh/(m²·a)
Gesamtenergieeffizienz (fGEE)
0,58
Weitere Energiedaten
Energieträger
Erdwärme, Solar
Heizungsart
Luft-/Wasser-Wärmepumpe
Details
Objektbeschreibung
Höchster Wohnkomfort und nachhaltige Vermietung
Herzlich willkommen im außergewöhnlichen Wohnbauprojekt "Ensemble Krems", welches gehobenes Wohnen mit modernster Energieeffizienz für eine renditestarke Vermietung vereint. Entdecken Sie exklusives Ambiente in sieben eleganten Villen, die insgesamt 62 exklusive...
Weitere Informationen
Stichworte
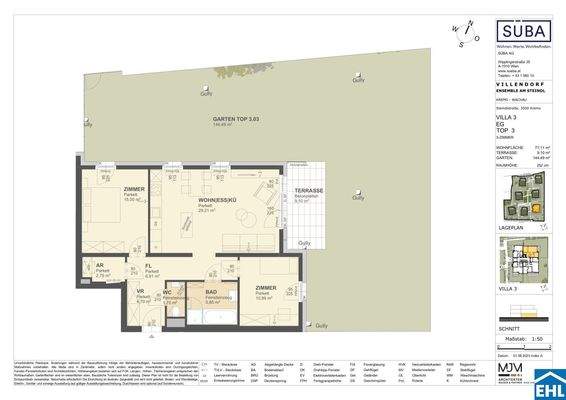
Nord-Ost-Balkon/Terrasse, Anzahl der Badezimmer: 1, Anzahl der separaten WCs: 1, Anzahl Terrassen: 1, Balkon-Terrassen-Fläche: 9,10 m², Gartenfläche: 144,49 m², Kellerfläche: 3,50 m², Bundesland: Niederösterreich, 3 Etagen, Wohnungsnr.: 3
Dokumente
Anbieter der Immobilie
EHL Immobilien GmbH
Prinz-Eugen-Straße 8-10, 1040 WIEN
Online-ID: 2ll3m5g
Referenznummer: OBGC202401171500251092bd747ff36
Finde Angebote wie dieses
Günstige Immobilienfinanzierung einfach online berechnen
Persönliches Angebot berechnenWarum sehe ich diese Werbung? – Du siehst diese Werbung basierend auf Deiner Navigation auf unserer Website und der von Dir verwendeten Suchkriterien.
Diese Werbung wird bezahlt von durchblicker
Werbung melden
Hier geht es zu unserem Impressum, den Allgemeinen Geschäftsbedingungen, den Hinweisen zum Datenschutz und nutzungsbasierter Online-Werbung.