

Dahler Bremen
Frau Julienne Janik
017 ···
Nr. anzeigenPreise & Kosten
Kaution
3 NKM
Provision für Mieter
3 Nettokaltmieten zzgl. MwSt.
Warum sehe ich diese Anzeige? – Du siehst diese Anzeige basierend auf Ihrer Navigation auf unserer Website und den Suchkriterien, die du verwendet hast.
Lage
Im Hemelinger Hafen befindet sich eins der wichtigsten Industriegebiete Bremens. Der Hafen ist ein zentraler Standort für viele Unternehmen in der Region, insbesondere Unternehmen der Logistik- und Schifffahrtsbranche sind hier vertreten. Besonders attraktiv wird dieser Standort durch den Verkehrsknotenpunkt mit guter...
Büro-/Praxisfläche
Kategorie
Bürofläche
Details
Objektbeschreibung
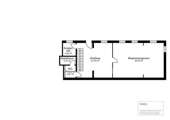
Gesucht wird ein Mieter für diese ansprechende Bürofläche direkt im Gewerbegebiet Hemelinger Hafen. Die zu vermietende Fläche umfasst insgesamt 222 m² und unterteilt sich in den großzügigen Eingangsbereich mit repräsentativem Empfang inklusive Küche, einen Besprechungsraum, sowie sechs frei gestaltbarer...
Ausstattung
_repräsentativer Empfang
_moderne Einbauküche im Empfangsbereich
_Teeküche im Obergeschoss
_großer Besprechungsraum mit Beamer
_sechs frei gestaltbare Büroräume
_Klimaanlagen in den Büroräumen
_separate Sanitärräume
_moderne lichtdurchflutete Arbeitsplätze
_ausreichend Parkplätze vor der...
Preisinformation
Nettokaltmiete: 1.350,00 EUR
Weitere Informationen
Sonstiges
Haben wir Ihr Interesse geweckt?
Dann melden Sie sich gerne bei uns!
Ansprechpartnerin:
Julienne Janik
Tel.: 0173 - 7704329
Ich freue mich auf Sie!
Unsere Objektangaben basieren auf den uns erteilten Informationen. Der Ist- Zustand der Grundrisse kann vom Plan- Zustand...
Anbieter der Immobilie
Dahler Bremen
Marcusallee 7a, 28359 Bremen

Online-ID: 2ll4m5m
Referenznummer: DC-BRE500
Finde Angebote wie dieses
Hier geht es zu unserem Impressum, den Allgemeinen Geschäftsbedingungen, den Hinweisen zum Datenschutz und nutzungsbasierter Online-Werbung.