PSD - Paritätische Sozialdienste Heilbronn gGmbH
Herr Götz Zipser
Kontaktiere den Anbieter schriftlich, es ist keine Telefonnummer hinterlegt.
Preise & Kosten
Kaution
3 Monatsmieten
Warum sehe ich diese Anzeige? – Du siehst diese Anzeige basierend auf Ihrer Navigation auf unserer Website und den Suchkriterien, die du verwendet hast.
Die Wohnung
Bezug
03/2026
Derzeitige Nutzung
frei
Wohnanlage
Energie & Heizung
Warum sehe ich diese Anzeige? – Du siehst diese Anzeige basierend auf Ihrer Navigation auf unserer Website und den Suchkriterien, die du verwendet hast.
Energieausweistyp
Verbrauchsausweis
Gebäudetyp
Wohngebäude
Weitere Energiedaten
Energieträger
Pellets
Haustyp
KfW 55
Heizungsart
Zentralheizung
Details
Weitere Informationen
Unsere Wohnungstypen
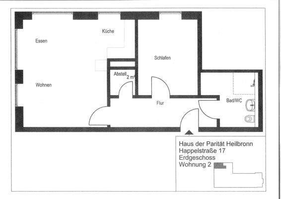
Im Haus der Parität in der Happelstr. 17 in Heilbronn haben wir verschiedene Wohnungstypen mit verschiedenen Wohnungsgrößen anzubieten.
Diese Inserat beschreibt unseren größten Wohungstyp mit 65 qm und 2 Zimmer für maximal 2 Personen.
Das kleinste Apartment verfügt über 25 qm.
Das...
Anbieter der Immobilie
PSD - Paritätische Sozialdienste Heilbronn gGmbH
Happelstr 17a, 74074 Heilbronn
Herr Götz Zipser
Dein Ansprechpartner
Kontaktiere den Anbieter schriftlich, es ist keine Telefonnummer hinterlegt.
Online-ID: 2llbq5r
Finde Angebote wie dieses
Hier geht es zu unserem Impressum, den Allgemeinen Geschäftsbedingungen, den Hinweisen zum Datenschutz und nutzungsbasierter Online-Werbung.