
HB-HB-Immobilien
Herr Charles Hyde-Blake
004 ···
Nr. anzeigenPreise & Kosten
Provision für Käufer
5,95 % (inkl. 19 % MwSt.) vom beurkundeten Kaufpreis, vom Käufer zu zahlen
Lage
Die Immobilie befindet sich in einer der begehrtesten Lagen Bremens - im Herzen des beliebten Stadtteils Schwachhausen. Dieses Umfeld zeichnet sich durch seine repräsentative Nachbarschaft, eine hochwertige Bausubstanz und ein urbanes, dennoch ruhiges Flair aus. In direkter Nähe liegt das bekannte Bremer Viertel rund um den...
Das Haus
Baujahr
1981
Bezug
ab sofort
Derzeitige Nutzung
vermietet
Energie & Heizung
Warum sehe ich diese Anzeige? – Du siehst diese Anzeige basierend auf Ihrer Navigation auf unserer Website und den Suchkriterien, die du verwendet hast.
Weitere Energiedaten
Haustyp
Massivhaus
Energieträger
Gas
Heizungsart
Etagenheizung
Details
Objektbeschreibung
Zum Verkauf steht eine attraktive, voll vermietete Gewerbeimmobilie in bekannter A-Lage von Bremen - im "Wachmannstraßen-Quartier", nur wenige Minuten vom Hauptbahnhof bzw. Stadtzentrum entfernt. Haltestellen des ÖPNV sind vor der Tür.
Die gepflegte Immobilie bietet attraktive, gut vermietbare Gewerbeflächen, diverse...
Ausstattung
Objektdaten (die Immobilie ist nach WEG geteilt):
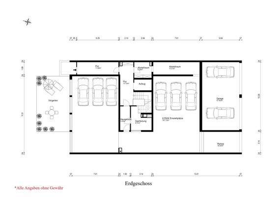
.7 Büros und Praxen auf 5 Etagen mit Fahrstuhl
.4 Tiefgaragenstellplätze
.4 Duplex-Parkplätze
.6 Außenstellplätze
.Fahrradabstellfläche für mind. 20 Fahrräder
.Grundstücksfläche: Ca. 637 m²
.Gesamtmietfläche: Ca. 1.206 m²
. Ist-Mieteinnahmen...
Preisinformation
Soll-Mieteinnahmen pro Jahr: 133.855,08 EUR
Ist-Mieteinnahmen pro Jahr: 133.855,08 EUR
Weitere Informationen
Sonstiges
Wichtiger Hinweis: Ein Energieverbrauchsausweis ist beantragt und liegt in Kürze vor!
Bei Interesse stellen wir Ihnen gerne aussagekräftige Objektunterlagen auf Anfrage zur Verfügung.
Unsere Objektangaben basieren auf den uns erteilten Informationen. Eine Haftung für die Richtigkeit und...
Anbieter der Immobilie
HB-HB-Immobilien
Schwachhauser Heerstr. 54A, 28209 Bremen
Online-ID: 2llcu5p
Referenznummer: CHB-25-03-0000095
Finde Angebote wie dieses
Hier geht es zu unserem Impressum, den Allgemeinen Geschäftsbedingungen, den Hinweisen zum Datenschutz und nutzungsbasierter Online-Werbung.