
Villa Noble S.L.
Herr Louis Wittner
003 ···
Nr. anzeigenPreise & Kosten
Provision für Käufer
Bitte beachte, das Angebot kann bei Vertragsabschluss die Zahlung einer Provision beinhalten. Weitere Informationen erhältst Du vom Anbieter.
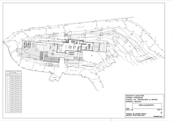
Das Grundstück
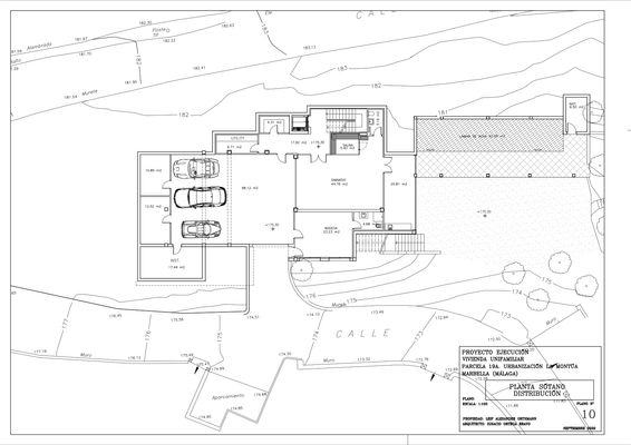
Details
Objektbeschreibung
Dies ist eine seltene Gelegenheit, ein erhöhtes, 2.111 m² großes Grundstück im aufstrebenden Norden Marbellas zu erwerben.
Perfekte Lage, nur fünf Minuten von Marbellas charmanter Altstadt und dem Einkaufszentrum sowie nur zehn Minuten von den schönsten Stränden und Strandclubs der Region entfernt. Diese fantastische...
Ausstattung
Panoramablick
Anbieter der Immobilie
Villa Noble S.L.
Puerto Banus, Muelle Ribera E-1, Villa Noble, 29006 MARBELLA
Online-ID: 2lld75g
Referenznummer: VN032447
Finde Angebote wie dieses
Hier geht es zu unserem Impressum, den Allgemeinen Geschäftsbedingungen, den Hinweisen zum Datenschutz und nutzungsbasierter Online-Werbung.