

Immobilienbüro Vehlow
Herr/Frau Klaus Vehlow
033 ···
Nr. anzeigenPreise & Kosten
Provision für Käufer
7,14 % inkl. MwSt. vom Kaufpreis Die Nachweis- bzw. Vermittlungsprovision für den Käufer beträgt 7,14 % inkl. 19% MwSt., vom Kaufpreis, wenn er als Verbraucher auftritt.
Lage
Lage: Das Grundstück befindet sich nicht weit vom Ortszentrum entfernt. Der Ort besteht zu großen Teilen aus Einfamilien- und Wochenendhäusern auf teilweise großen Waldgrundstücken. Die Lage verschafft einen direkten Zugang zu Erholung und Entspannung, einem der Vorzüge, die der Ort seit Jahrzehnten genießt. Die...
Das Grundstück
Energie & Heizung
Warum sehe ich diese Anzeige? – Du siehst diese Anzeige basierend auf Ihrer Navigation auf unserer Website und den Suchkriterien, die du verwendet hast.
Energieausweis: für diesen Gebäudetyp nicht notwendig
Details
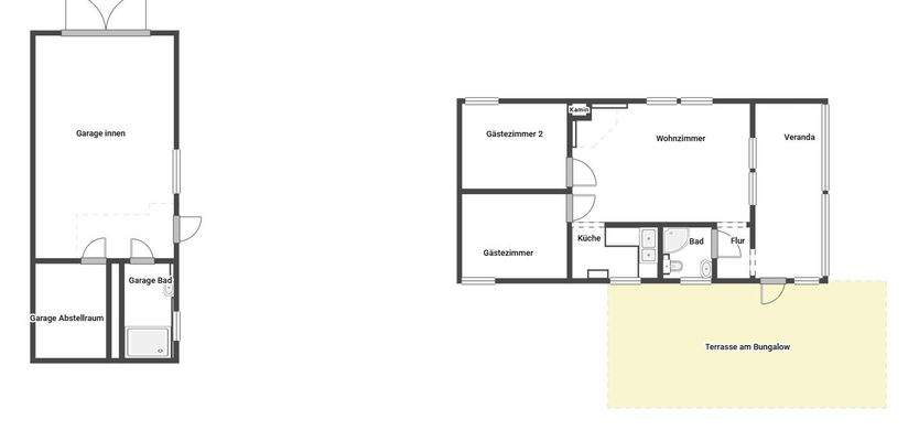
Objektbeschreibung
Grundstück: Das zu verkaufende Grundstück liegt im Einzugsbereich des Ortszentrums von Borkheide. Es ist kein Baugrundstück. Über die Zulässigkeit möglicher konkreter Bauvorhaben entscheidet die Bauaufsichtsbehörde des Landkreises Potsdam-Mittelmark. Es ist Aufgabe des Erwerbers alle für die Nutzung/Umnutzung und mögliche...
Ausstattung
Erschließung: Das Grundstück liegt an der Straße Eichenallee. Die Straße ist unbefestigt. Die Anschlüsse für Wasser, Strom und Telefon liegen auf dem Grundstück und im Bungalow sowie dem Nebengebäude an. Für das Abwasser befindet sich eine Abwassergrube auf dem Grundstück. Auf der Grundlage neuer Entsorgungsrichtlinien muss...
Weitere Informationen
Standort: Das Grundstück liegt in der ca. 2.300 Einwohner zählenden Gemeinde Borkheide, ca. 25 km südwestlich von Potsdam, im Landkreis Potsdam-Mittelmark. Die selbstständige Gemeinde ist verwaltungsseitig ein Teil des Amtes Brück. Mit der Entstehung des Bahnhofes Bork fing alles an. Das Waldgebiet um das heutige...
Anbieter der Immobilie
Immobilienbüro Vehlow
Kreuzdornweg 5, 14542 Werder/Havel

Online-ID: 2lldk5m
Referenznummer: 2227
Finde Angebote wie dieses
Hier geht es zu unserem Impressum, den Allgemeinen Geschäftsbedingungen, den Hinweisen zum Datenschutz und nutzungsbasierter Online-Werbung.