
Dr. Schmidt-Bovendeert Immobilien OHG
Frau Susanne Heck
004 ···
Nr. anzeigenPreise & Kosten
Provision für Käufer
3,57 % inkl. MwSt.
Lage
Das charmante Einfamilienhaus befindet sich im idyllischen Ort Weitefeld, eingebettet in die malerische Landschaft des Westerwaldes. Weitefeld zeichnet sich durch seine ruhige und dennoch gut angebundene Lage aus, die sowohl Naturfreunde als auch Pendler anspricht.
Die Umgebung bietet zahlreiche Möglichkeiten für...
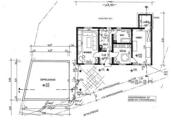
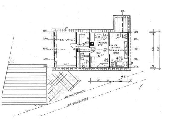
Das Haus
Kategorie
Einfamilienhaus
Baujahr
1900
Energie & Heizung
Warum sehe ich diese Anzeige? – Du siehst diese Anzeige basierend auf Ihrer Navigation auf unserer Website und den Suchkriterien, die du verwendet hast.
Energieausweistyp
Bedarfsausweis
Gebäudetyp
Wohngebäude
Baujahr laut Energieausweis
1900
Wesentliche Energieträger
GAS
Gültigkeit
bis 23.09.2035
Effizienzklasse
E
Endenergiebedarf
152,61 kWh/(m²·a)
Weitere Energiedaten
Haustyp
Holzhaus
Energieträger
Gas
Heizungsart
offener Kamin, Zentralheizung
Details
Objektbeschreibung
Herzlich willkommen in Ihrem neuen Zuhause in Weitefeld! Dieses charmante Einfamilienhaus ist perfekt für Familien geeignet, die auf der Suche nach einem harmonischen Lebensraum sind.
Das ca. 1900 errichtete Fachwerkhaus beeindruckt durch seine natürliche Bauweise mit einer Wohnfläche von ca. 124 m². Auf einem ca. 474...
Ausstattung
- Fachwerkhaus von 1900
- Dacheindeckung in Kunstschiefer
- Fassenverkleidung in Kunstschiefer
- Einbauküche
- Gas-Zentralheizung
- Kachelofen mit Bestandsschutz
- Vorbereitung für Wärmepumpe: Hygienekombispeicher, Pumpenblock, Steuerung
- der überwiegende Anteil der Außenwände wurde von innen...
Weitere Informationen
Sonstiges
Die in unserem Exposé enthaltenen Aussagen basieren ausschließlich auf Informationen, die uns vom Verkäufer zur Verfügung gestellt wurden. Wir übernehmen daher keine Gewähr für die Vollständigkeit und Richtigkeit der Angaben. Das Immobilienangebot ist freibleibend. Irrtum und Zwischenverkauf bleiben...
Anbieter der Immobilie
Online-ID: 2lle55q
Referenznummer: 4406
Finde Angebote wie dieses
Hier geht es zu unserem Impressum, den Allgemeinen Geschäftsbedingungen, den Hinweisen zum Datenschutz und nutzungsbasierter Online-Werbung.