




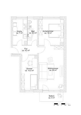
Wohnung zur Miete405 €3 Zimmer • 60,8 m² • 4. Geschoss
405 €
3 Zimmer • 60,8 m² • 4. Geschoss
FĂĽr die kleine Familie.
Merkmale
- Bezug: sofort
- 4. Geschoss
- Kelleranteil
- Balkon
- Badewanne
Grundrisse
Grundrisse
1 / 2
Realisiere Dein Projekt
Bausubstanz und Energie
Energieausweis
B
- Baujahr1974
- EnergieträgerFernwärme
Mietkosten
Warmmiete
550 €
Kaltmiete
6,66 €/m²
405 €
Nebenkosten
80 €
Heizkosten
65 €
Kaution
keine Angabe
Weitere Preisinformationen
Nettokaltmiete: 405,00 EUR
Lage

Georg-Dreke-Ring 99, Prenzlau (17291)
Weitere Informationen
Weitere Services
Lust auf eine Besichtigung?
Eine Frage zur Immobilie?
Ăśber den Anbieter
Wohnbau GmbH PrenzlauMaklerbĂĽro
Friedrichstr. 41, 17291 Prenzlau
Partnerschaft

Team VermietungsexpertenDein Kontakt
Online-ID: 2llek5x
Referenznummer: 1/31/3/29
Wie zufrieden bist du mit dieser Seite (nicht mit der Immobilie selbst)?




