
Mentor Immobilien GmbH
Frau Jana Lizenberger
004 ···
Nr. anzeigenPreise & Kosten
Provision für Käufer
3,57
Lage
Schweinfurt hat eine ausgezeichnete Verkehrsanbindung. In nächster Nähe sind die Autobahnen A70, A 71 und A7. Würzburg oder Bamberg sind nur etwas mehr als eine halbe Stunde entfernt. Auch per Bahn ist Schweinfurt gut angebunden. Schweinfurt hat 3 Bahnhöfe bzw. Bahnhaltepunkte.
In einer der begehrtesten Wohnlagen von...
Die Wohnung
Wohnungslage
4. Geschoss
Bezug
sofort
Wohnanlage
Energie & Heizung
Warum sehe ich diese Anzeige? – Du siehst diese Anzeige basierend auf Ihrer Navigation auf unserer Website und den Suchkriterien, die du verwendet hast.
Energieausweistyp
Verbrauchsausweis
Gebäudetyp
Wohngebäude
Baujahr laut Energieausweis
1992
Wesentliche Energieträger
GAS
Gültigkeit
bis 17.09.2028
Effizienzklasse
D
Endenergieverbrauch
119,46 kWh/(m²·a)
Weitere Energiedaten
Heizungsart
Zentralheizung
Details
Objektbeschreibung
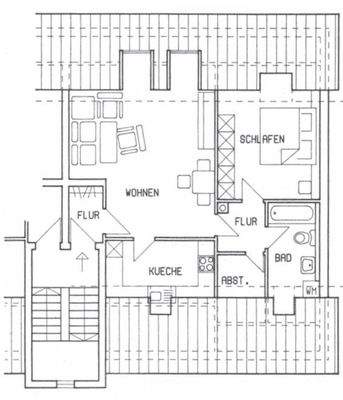
Im 4. Obergeschoss (ohne Lift) eines 1992 erbauten Mehrfamilienhauses befindet sich die angebotene Immobilie.
Beim Eintreten in die Wohnung empfängt Sie eine Diele mit Garderobe, anschließend das großzügige Wohn- und Esszimmer. Von diesem aus haben Sie Zugang zur Küche inkl. Einbauküche.
Durch einen weiteren Flur...
Preisinformation
1 Stellplatz
Weitere Informationen
Sonstiges
Weitere Angebote finden Sie auf unserer Homepage: www.mentor-sw.de
Stichworte
Fahrradraum, Anzahl der Schlafzimmer: 1, Anzahl der Badezimmer: 1, Kellerfläche: 1,00 m², 5 Etagen
Anbieter der Immobilie
Online-ID: 2llgh5t
Referenznummer: 766
Finde Angebote wie dieses
Hier geht es zu unserem Impressum, den Allgemeinen Geschäftsbedingungen, den Hinweisen zum Datenschutz und nutzungsbasierter Online-Werbung.