
Aigner Immobilien GmbH
Herr Stephan Michl
+49 ···
Nr. anzeigenPreise & Kosten
Provision für Käufer
provisionsfrei
Lage
Im idyllischen Schondorf am Ammersee entwickeln wir für Sie zwei Doppelhaushälften in ruhiger Ortsrandlage.
Schondorf liegt mitten im Fünf-Seen-Land, direkt am wunderschönen Ammersee. Nur 45 Kilometer westlich von München gelegen stellt der Luftkurort einen idealen Ausgangspunkt für Berufspendler und Freizeitsportler...
Das Haus
Kategorie
Doppelhaushälfte
Baujahr
2026
Bezug
Sofort
Energie & Heizung
Warum sehe ich diese Anzeige? – Du siehst diese Anzeige basierend auf Ihrer Navigation auf unserer Website und den Suchkriterien, die du verwendet hast.
Weitere Energiedaten
Heizungsart
Zentralheizung
Details
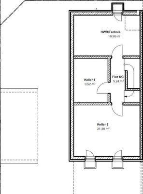
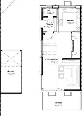
Objektbeschreibung
Diese moderne Doppelhaushälfte im Neubau überzeugt nicht nur durch ihre attraktive Architektur, sondern auch durch durchdachte Raumaufteilung und hochwertige Ausstattung. Auf rund 158m² bietet dieses Haus eine perfekte Kombination aus funktionalem Design und hochwertigem Komfort für Familien.
Raumaufteilung und...
Ausstattung
. Heizung: Luft-Wasser-Wärmepumpe, FBH in allen Geschossen (auch Keller komplett)
. Fußbodenheizung in allen Räumen einzeln regulierbar
. Netzwerkverkabelung in allen Wohnräumen
. Massivbauweise
. Terrasse mit Holzdielenbelag, Lärche natur auf Lärche Unterkonstruktion
. Parkettböden in allen Wohnräumen /...
Preisinformation
1 Garagenstellplatz
Weitere Informationen
Sonstiges
Baujahr: 2026
Heizungsart: Wärmepumpe
Zu unseren Marktberichten - https://aigner-immobilien.de/marktinformationen/
- https://aigner-immobilien.de/objekt/ID-41816/MehrBilderundInfoshier
Kostenlose Online-Bewertung - https://aigner-immobilien.de/wertermittlung-online-muenchen/
Mehr...
Anbieter der Immobilie
Aigner Immobilien GmbH
Ruffinistraße 26, 80637 München
Online-ID: 2llh55m
Referenznummer: 41816
Finde Angebote wie dieses
Hier geht es zu unserem Impressum, den Allgemeinen Geschäftsbedingungen, den Hinweisen zum Datenschutz und nutzungsbasierter Online-Werbung.