
Aengevelt Immobilien GmbH & Co KG
+49 ···
Nr. anzeigenPreise & Kosten
Provision für Mieter
provisionsfrei
Warum sehe ich diese Anzeige? – Du siehst diese Anzeige basierend auf Ihrer Navigation auf unserer Website und den Suchkriterien, die du verwendet hast.
Lage
Das moderne Bürogebäude befindet sich im noblen Stadtteil Westend und in unmittelbarer Nähe zur Frankfurter Messe. Zwischen den zahlreichen, freistehenden Villen und Parks finden Sie zahlreiche Einkaufsmöglichkeiten und Restaurants. In wenigen Minuten erreichen Sie die U-Bahnstation Festhalle/Messe, die nur eine Station vom...
Büro-/Praxisfläche
Kategorie
Bürogebäude
Baujahr
1958
Bezug
nach Vereinbarung
Energie & Heizung
Warum sehe ich diese Anzeige? – Du siehst diese Anzeige basierend auf Ihrer Navigation auf unserer Website und den Suchkriterien, die du verwendet hast.
Wärme
Strom
Energieausweistyp
Verbrauchsausweis
Gebäudetyp
Nicht-Wohngebäude
Baujahr laut Energieausweis
1958
Wesentliche Energieträger
Erdgas schwer
Gültigkeit
seit 28.10.2019
Endenergieverbrauch (Wärme)
226,60 kWh/(m²·a)
Endenergieverbrauch (Strom)
4,50 kWh/(m²·a)
Weitere Energiedaten
Energieträger
Gas
Details
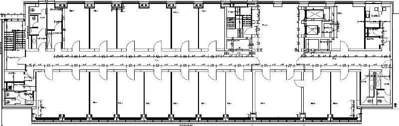
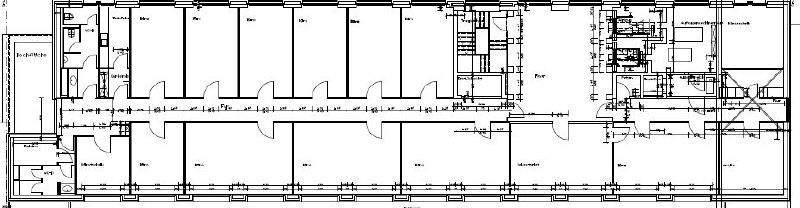
Objektbeschreibung
Mit seiner Kombination aus Glas- und Bruchsteinfassade wird das 1958 erbaute und im Jahr 2000 sanierte Gebäude sowohl durch klassische Eleganz als auch durch moderne Architektur geprägt. Treten Sie ein und lassen Sie das sich über 2 Etagen erstreckende Entree mit Galerie sowie den aus Edelholz gestalteten Empfangsbereich und...
Ausstattung
Das Gebäude verfügt über gute Sicherheitsstandards, welche duch ein Zugangskontrollsystem und Vidoeüberwachung in der Tiefgarage gewährleistet wird. Die repräsentativen Büroflächen lassen sich individuell gestalten und bieten dem Mieter verschiedene Nutzungskonzepte. Das 3. Obergeschoss erreichen Sie bequem über zwei elegante...
Weitere Informationen
Stichworte
Stellplatz vorhanden, Gesamtfläche: 4.249,38 m², 7 Etagen
Anbieter der Immobilie
Online-ID: 2llhq5r
Referenznummer: 37723
Finde Angebote wie dieses
Hier geht es zu unserem Impressum, den Allgemeinen Geschäftsbedingungen, den Hinweisen zum Datenschutz und nutzungsbasierter Online-Werbung.