
Sommer & Lauber GmbH
Herr Roland Lauber
017 ···
Nr. anzeigenDieses Angebot ist Teil des Neubauprojekts
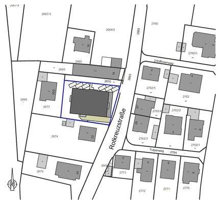
Neubau Eigentumswohnungen 97980 Bad Mergentheim
Preise & Kosten
Provision für Käufer
provisionsfrei
Abschreibung/Anlage
als Kapitalanlage geeignet
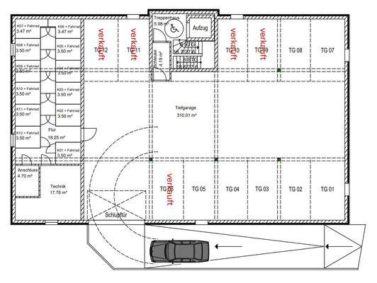
Die Wohnung
Wohnungslage
Erdgeschoss
Bezug
2027
Wohnanlage
Das Neubauprojekt
Energie & Heizung
Warum sehe ich diese Anzeige? – Du siehst diese Anzeige basierend auf Ihrer Navigation auf unserer Website und den Suchkriterien, die du verwendet hast.
Weitere Energiedaten
Haustyp
KfW 40
Heizungsart
Fußbodenheizung, Luft-/Wasser-Wärmepumpe
Details
Weitere Informationen
Stadtnah und Barrierearm
In attraktiver und innenstadtnaher Lage in Bad Mergentheim entsteht ein hochwertiges Neubauprojekt mit insgesamt 12 modernen Eigentumswohnungen. Die Wohnanlage wird als Energieeffizienzhaus KfW 40 mit QNG-Siegel (Qualitätssiegel Nachhaltiges Gebäude) realisiert und erfüllt damit höchste Ansprüche...
Anbieter der Immobilie
Sommer & Lauber GmbH
Goethestraße 20 b, 97922 Lauda-Königshofen
Online-ID: 2lljr5k
Referenznummer: 011
Finde Angebote wie dieses
Hier geht es zu unserem Impressum, den Allgemeinen Geschäftsbedingungen, den Hinweisen zum Datenschutz und nutzungsbasierter Online-Werbung.