

Aengevelt Immobilien GmbH & Co KG
Frau Neelam Mahtani-Staehle
+49 ···
Nr. anzeigenPreise & Kosten
Provision für Mieter
provisionsfrei
Warum sehe ich diese Anzeige? – Du siehst diese Anzeige basierend auf Ihrer Navigation auf unserer Website und den Suchkriterien, die du verwendet hast.
Lage
Die Liegenschaft liegt nur wenige hundert Meter von der Anschlussstelle Bad Homburg an die A661 entfernt. Über das Bad Homburger Kreuz (A5) sind das Frankfurter Kreuz sowie der Frankfurter Flughafen schnell erreichbar. Das gesamte Rhein-Main-Autobahnnetz ist bequem angebunden. Die S-Bahn-Haltestelle "Bad Homburg" (S5)...
Büro-/Praxisfläche
Kategorie
Bürofläche
Baujahr
2004
Bezug
ab sofort
Energie & Heizung
Warum sehe ich diese Anzeige? – Du siehst diese Anzeige basierend auf Ihrer Navigation auf unserer Website und den Suchkriterien, die du verwendet hast.
Wärme
Strom
Energieausweistyp
Verbrauchsausweis
Gebäudetyp
Nicht-Wohngebäude
Baujahr laut Energieausweis
2004
Wesentliche Energieträger
Gas
Gültigkeit
seit 19.02.2020
Endenergieverbrauch (Wärme)
66,00 kWh/(m²·a)
Endenergieverbrauch (Strom)
54,00 kWh/(m²·a)
Weitere Energiedaten
Energieträger
Gas
Details
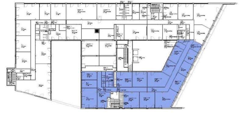
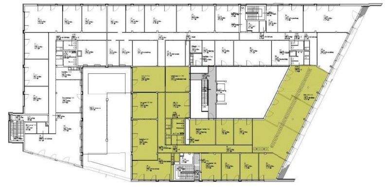
Objektbeschreibung
Das im Jahr 2004 errichtete Bürogebäude beeindruckt durch seine moderne Architektur und eine markante, abgeschrägte Glasfassade, die dem Objekt einen repräsentativen Charakter verleiht. Es erstreckt sich über fünf Obergeschosse sowie drei Untergeschosse und bietet damit großzügige Flächen für unterschiedlichste Nutzungen...
Ausstattung
Das repräsentative Atrium mit einem besetzbaren Empfangsbereich schafft einen einladenden und professionellen Eingangsbereich, der sowohl Mitarbeitern als auch Gästen einen angenehmen ersten Eindruck vermittelt. Die Büroflächen sind dank großer Fenster besonders lichtdurchflutet und sorgen so für ein helles und inspirierendes...
Weitere Informationen
Stichworte
Gesamtfläche: 10.134,00 m², 4 Etagen
Sonstiges: EDV-Verkabelung
Anbieter der Immobilie
Aengevelt Immobilien GmbH & Co KG
Kennedydamm 55/Ross-Strasse, 40476 Düsseldorf

Online-ID: 2llkq5r
Referenznummer: 38069
Finde Angebote wie dieses
Hier geht es zu unserem Impressum, den Allgemeinen Geschäftsbedingungen, den Hinweisen zum Datenschutz und nutzungsbasierter Online-Werbung.