
DAHLER Dresden
Herr Ralf Kugler
004 ···
Nr. anzeigenPreise & Kosten
Provision für Käufer
2,38 % inkl. ges. MwSt. bezogen auf den Kaufpreis
Lage
Im Herzen des traditionsreichen Dresdner Stadtteils Loschwitz liegt dieses außergewöhnliche Objekt in einer der begehrtesten Wohnlagen der Stadt. Das historische Villenviertel an den Elbhängen besticht durch elegante Architektur, sanierte Gründerzeitvillen, kleine Gärten und den unvergleichlichen Blick auf das Elbtal. In...
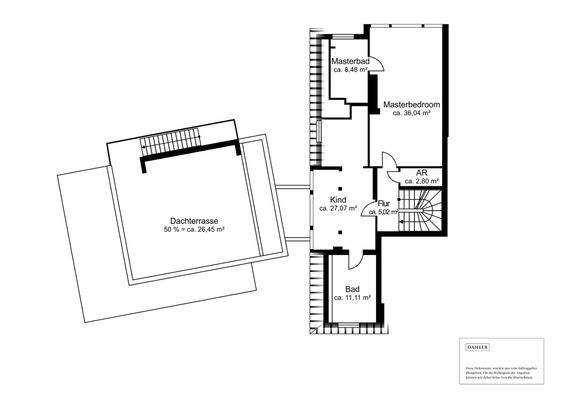
Die Wohnung
Kategorie
Maisonette
Wohnanlage
Energie & Heizung
Warum sehe ich diese Anzeige? – Du siehst diese Anzeige basierend auf Ihrer Navigation auf unserer Website und den Suchkriterien, die du verwendet hast.
Energieausweis: für diesen Gebäudetyp nicht notwendig
Weitere Energiedaten
Heizungsart
Fußbodenheizung
Details
Objektbeschreibung
Die denkmalgeschützte Villa "Schöne Aussicht" in Dresden-Oberloschwitz verbindet über 200 Jahre Geschichte mit modernem Wohnkomfort. Seit dem 18. Jahrhundert als Ausflugslokal mit Panoramablick über das Elbtal geschätzt, wird das historische Gebäude nun in zwei exklusive Wohneinheiten umgewandelt. Die Sanierung erfolgt in...
Ausstattung
_ Villa "Schöne Aussicht" in Dresden-Oberloschwitz,
_ Eine der begehrtesten Wohnadressen der Stadt Dresden
_ Denkmalgeschütztes Gebäude mit reicher historischer Vergangenheit
_ Denkmalgerechte Sanierung auf modernstem energetischem Standard
_ Westflügel umfasst ca. 269 m² Wohnfläche auf zwei Ebenen inklusive...
Preisinformation
1 Garagenstellplatz
Weitere Informationen
Sonstiges
Nähere Informationen zur Immobilie finden Sie in unserem ausführlichen Exposé, welches wir Ihnen gern auf Anfrage zusenden.
Alle Angaben beruhen auf Auskünften des Eigentümers bzw. Verkäufers. Wir können daher keine Gewähr für die Richtigkeit der Verkäuferangaben übernehmen. Sollten Sie Vorkenntnis über...
Anbieter der Immobilie
Online-ID: 2llng5t
Referenznummer: DC-DRS1175
Finde Angebote wie dieses
Hier geht es zu unserem Impressum, den Allgemeinen Geschäftsbedingungen, den Hinweisen zum Datenschutz und nutzungsbasierter Online-Werbung.