

Bergen Real Estate
Herr Fabian Grünewald
+49 ···
Nr. anzeigenPreise & Kosten
Provision für Käufer
7,14% des Kaufpreises inkl. MwSt.
Lage
Die Gewerbehalle bietet eine zentrale Lage in Berlin-Spandau an der Grenze zu Westend. Sie liegt nahe der Polizeiakademie.
Verkehrsanbindung
Bis zur nächsten U-Bahnstation (U2 Ruhleben) sind es rund acht Gehminuten. Es besteht ein schneller Zugang zu den Buslinien M45 und 131. Der Spandauer Damm als...
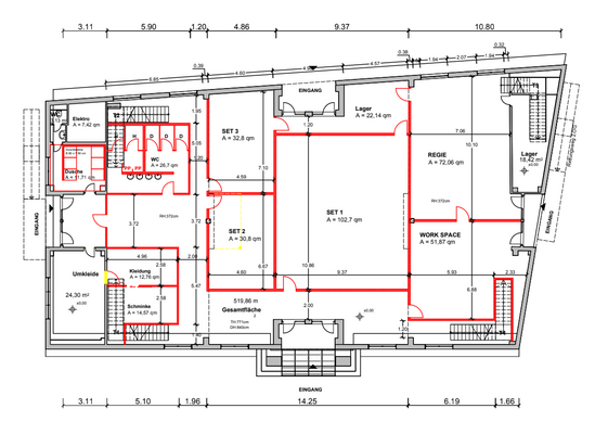
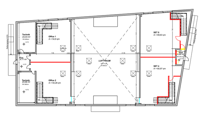
Die Industriefläche
Kategorie
Lagerhalle
Baujahr
2011
Bezug
sofort
Energie & Heizung
Warum sehe ich diese Anzeige? – Du siehst diese Anzeige basierend auf Ihrer Navigation auf unserer Website und den Suchkriterien, die du verwendet hast.
Wärme
Energieausweistyp
Bedarfsausweis
Gebäudetyp
Nicht-Wohngebäude
Baujahr laut Energieausweis
2011
Gültigkeit
12.08.2025 bis 11.08.2025
Endenergiebedarf (Wärme)
111,40 kWh/(m²·a)
Details
Objektbeschreibung
Die ca. 1.000 Quadratmeter große Gewerbehalle mit Baujahr 2011 verfügt über eine Stahlskelettkonstruktion mit sehr gut isolierten Sandwichwänden und hochwertiger, moderner Metallfassade. Sie punktet mit einer Klimatisierung und einer großzügigen Belichtung durch hohe Fensterbänder sowie einer Lüftungsanlage mit...
Preisinformation
42 Stellplätze
Weitere Informationen
Sonstiges
Wir bieten die Immobilie im qualifizierten Alleinauftrag an. Die Provision für den Käufer beträgt 7,14% inkl. der gesetzlichen Mehrwertsteuer des Kaufpreises und ist für den Käufer mit dem Zustandekommen des Kaufvertrages (notarieller Vertragsabschluss) verdient und fällig. Die vermittelnde und/oder nachweisende...
Anbieter der Immobilie
Bergen Real Estate
Meinekestraße 8, 10719 Berlin

Online-ID: 2llnh5m
Referenznummer: 9070#GtSgx
Finde Angebote wie dieses
Hier geht es zu unserem Impressum, den Allgemeinen Geschäftsbedingungen, den Hinweisen zum Datenschutz und nutzungsbasierter Online-Werbung.