
GCS FINANZIMMO
Frau Sarah Schneider
004 ···
Nr. anzeigenPreise & Kosten
Provision für Käufer
3,57 inkl. MwSt.
Lage
Merzkirchen ist eine ländliche Gemeinde im rheinland-pfälzischen Landkreis Trier-Saarburg.
Sie liegt nahe der Grenze zu Luxemburg (ca. 7km) und ist von einer hügeligen Agrarlandschaft mit Äckern und Weideland geprägt. Die Region ist bekannt für den Viez ( Apfelwein) und Merzkirchen liegt an der Viezstraße. Für...
Das Haus
Kategorie
Einfamilienhaus
Baujahr
2025
Bezug
sofort
Energie & Heizung
Warum sehe ich diese Anzeige? – Du siehst diese Anzeige basierend auf Ihrer Navigation auf unserer Website und den Suchkriterien, die du verwendet hast.
Energieausweistyp
Bedarfsausweis
Gebäudetyp
Wohngebäude
Baujahr laut Energieausweis
2025
Wesentliche Energieträger
LUFTWP
Gültigkeit
bis 08.05.2035
Effizienzklasse
A+
Endenergiebedarf
26,80 kWh/(m²·a)
Weitere Energiedaten
Heizungsart
Fußbodenheizung, Luft-/Wasser-Wärmepumpe
Details
Objektbeschreibung
Energieeffizienter Neubau - KfW 70 Standard.
Dieses massiv gebaute Einfamilienhaus befindet sich in einer ruhigen Seitenstraße von Merzkirchen und wurde in 2025 fertiggestellt.
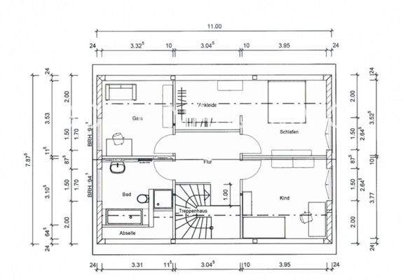
Es bietet auf 2 Etagen ( ohne Keller) und ca. 128 qm Wohnfläche viel Potenzial, seine eigenen Wünsche und Vorstellungen von einem...
Ausstattung
- Massivbau (Stein auf Stein)
- Dacheindeckung: Beton-Dachsteine in grau
- Dachrinne und Fallrohre aus witterungsbeständigem Titanzink
- gedämmter Spitzboden
- Decken und Dachschrägen gedämmt mit 24 cm starken mineralischen Wärmedämmung
- Haus mit 24cm starker mineralischen Wärmedämmung gedämmt
-...
Weitere Informationen
Sonstiges
Auf Wunsch bieten wir Ihnen in unserem Haus als erfahrene Ansprechpartner rund um das Thema Immobilie auch eine passgenaue Immobilienfinanzierung an. Wir prüfen zusätzlich die Baufinanzierung incl. möglicher Fördermittel und öffentliche Gelder. Innerhalb dieser Prüfung setzen wir uns mit allen Beteiligten in...
Anbieter der Immobilie
GCS FINANZIMMO
Zum Tauerngrund 4, 54306 Kordel
Online-ID: 2llnk5w
Referenznummer: GCS-146
Finde Angebote wie dieses
Hier geht es zu unserem Impressum, den Allgemeinen Geschäftsbedingungen, den Hinweisen zum Datenschutz und nutzungsbasierter Online-Werbung.