
HOMANN IMMOBILIEN Münster GMBH
Herr Bernard H. Homann
004 ···
Nr. anzeigenPreise & Kosten
Provision für Käufer
provisionsfrei
Lage
In der wunderschönen Altstadt von Münster, unmittelbar angrenzend an das Domviertel, befindet sich das Antiquariat Wilsberg, welches durch die Dreharbeiten zum Wilsberg-Krimi Berühmtheit erlangte.
Profitieren Sie von der Lebendigkeit inmitten der Stadt!
Shoppen, Gastronomie, Museen, Theater, Wochenmarkt....und...
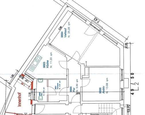
Die Ladenfläche
Kategorie
Laden
Erdgeschoss
Details
Objektbeschreibung
Rarität und Liebhaberobjekt zugleich!
Die Ladenfläche, in der sich das bekannte Antiquariat Solder befindet - bekannt als zentrale Filmkulisse der ZDF-Kultserie *Wilsberg* - steht zum Verkauf. Seit 1997 dient dieser Ort als regelmäßiger Drehort der beliebten Krimireihe und gehört zu den bekanntesten Schauplätzen im...
Ausstattung
Hier ein paar Highlights auf den ersten Blick:
- Top Innenstadtlage!
- Attraktives Gebäude - berühmt durch Wilsberg-Krimi
- Große Schaufensterflächen
- Ansprechende Aufteilung der Räumlichkeiten
- Gut vermietet bis 31.03.2027 mit Option auf jährliche Verlängerung
- 2 Lagerräume im Keller ca. 25 m²
- 1...
Weitere Informationen
Sonstiges
Eine faszinierende Gelegenheit ein Teil der Filmgeschichte des Wilsberg-Krimis zu werden, indem man das Antiquariat Wilsberg erwirbt.
Wenn Sie weitere Informationen benötigen oder Fragen zur Kaufmöglichkeit haben, stehen wir Ihnen gerne zur Verfügung.
Stichworte
Lagerfläche: 25,00 m², Nutzfläche...
Anbieter der Immobilie
Online-ID: 2llnv5v
Referenznummer: 2664
Finde Angebote wie dieses
Hier geht es zu unserem Impressum, den Allgemeinen Geschäftsbedingungen, den Hinweisen zum Datenschutz und nutzungsbasierter Online-Werbung.