
DER IMMO TIP Vermittlung von Immobilien GmbH
Herr Michael Hoffmann
037 ···
Nr. anzeigenPreise & Kosten
Provision für Mieter
provisionsfrei
Abschreibung/Anlage
Denkmalschutz-Afa
Warum sehe ich diese Anzeige? – Du siehst diese Anzeige basierend auf Ihrer Navigation auf unserer Website und den Suchkriterien, die du verwendet hast.
Lage
Mit ca. 245.000 Einwohnern ist die zum Sachsendreieck zählende Stadt Chemnitz das wirtschaftliche Oberzentrum und für die Region Südwestsachsen der wirtschaftliche und kulturelle Mittelpunkt für ca. 1 Million Menschen. Neben Berlin gehört die Region Südwestsachsen mit einer Bevölkerungsdichte von 700 Einwohner / km² zu den...
Büro-/Praxisfläche
Kategorie
Bürofläche
Bezug
2023
Geschoss
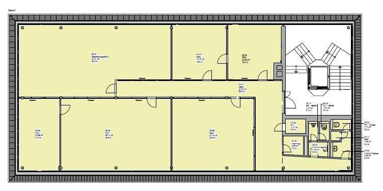
4. Geschoss
Energie & Heizung
Warum sehe ich diese Anzeige? – Du siehst diese Anzeige basierend auf Ihrer Navigation auf unserer Website und den Suchkriterien, die du verwendet hast.
Weitere Energiedaten
Energieträger
Gas
Heizungsart
Zentralheizung
Details
Objektbeschreibung
Kurzbeschreibung
Neubau - Büroetage in Chemnitz Grüna mieten -
Objekt
Zur Vermietung steht das 4.OG im 2022 voll sanierten neuwertigen modernen Bürohaus. Das Bürohaus ist ausgestattet mit einem neuen Aufzug sowie einem Treppenhaus. Es stehen aktuell 70 Stellplätze zur Verfügung. Die Fassade steht unter...
Preisinformation
70 Stellplätze, Miete je: 25,00 EUR
Nettokaltmiete: 3.250,00 EUR
Weitere Informationen
Sonstiges
Hinweis: Fehlende Angaben zum Energieausweis gemäß Energiesparverordnung 2014 ( EnEV ) begründen sich durch Nichtangabepflicht bei Denkmalschutzobjekten, Grundstücken, nichtbeheizbaren Immobilien oder wurden bisher trotz Aufforderung gegenüber dem Auftraggeber nicht zur Verfügung gestellt...
Anbieter der Immobilie
DER IMMO TIP Vermittlung von Immobilien GmbH
Semperstr. 1, 01069 Dresden
Online-ID: 2llp65j
Referenznummer: 62387
Finde Angebote wie dieses
Hier geht es zu unserem Impressum, den Allgemeinen Geschäftsbedingungen, den Hinweisen zum Datenschutz und nutzungsbasierter Online-Werbung.