

Detharding Immobilien
Frau Jasmin Sanchez Lux
056 ···
Nr. anzeigenPreise & Kosten
Provision für Käufer
3,0 % (incl. MwSt.) des beurkundeten Kaufpreises
Lage
Obervellmar gehört zur Stadt Vellmar im Landkreis Kassel und zeichnet sich durch eine hohe Wohnqualität in naturnaher Umgebung aus. Der Stadtteil bietet eine gelungene Mischung aus ruhiger Wohnlage, gewachsener Nachbarschaft und guter Infrastruktur - ideal für Familien, Paare und alle, die stadtnah, aber dennoch im Grünen...
Das Haus
Kategorie
Einfamilienhaus
Baujahr
1973
Energie & Heizung
Warum sehe ich diese Anzeige? – Du siehst diese Anzeige basierend auf Ihrer Navigation auf unserer Website und den Suchkriterien, die du verwendet hast.
Energieausweistyp
Bedarfsausweis
Gebäudetyp
Wohngebäude
Baujahr laut Energieausweis
2012
Wesentliche Energieträger
OEL
Gültigkeit
bis 05.10.2035
Effizienzklasse
D
Endenergiebedarf
114,40 kWh/(m²·a)
Weitere Energiedaten
Haustyp
Massivhaus
Energieträger
Öl
Heizungsart
Fußbodenheizung, offener Kamin
Details
Objektbeschreibung
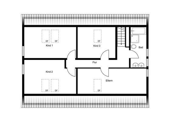
Willkommen Zuhause - ein Ort, an dem moderner Wohnkomfort auf familiäre Gemütlichkeit trifft. Das freistehende Einfamilienhaus wurde 1973 erbaut und befindet sich in ruhiger Lage auf einem großzügigen Grundstück von etwa 705 m². Mit einer Wohnfläche von ca. 193 m², verteilt auf sechs Zimmer und zwei Etagen, bietet das Haus...
Ausstattung
- umfänglich modernisiertes Einfamilienhaus
- Gebäudehülle gedämmt
- Photovoltaik
- Vorrichtung für Wärmepumpe bereits vorhanden
- neuer offener Grundriss
- 6 Zimmer
- 2 Bäder (EG und OG)
- 1 Gästetoilette (UG))
- Fenster 3-fach verglast
- Türen innen und außen neu
- modern und komfortabel...
Preisinformation
1 Stellplatz
1 Garagenstellplatz
Weitere Informationen
Stichworte
Anzahl der Schlafzimmer: 5, Anzahl der Badezimmer: 2, Anzahl der separaten WCs: 1, Anzahl Terrassen: 1, modernisiert
Anbieter der Immobilie
Detharding Immobilien
An den Vogelwiesen 2 B, 34132 Kassel

Online-ID: 2llqr5y
Referenznummer: 25.10423
Finde Angebote wie dieses
Hier geht es zu unserem Impressum, den Allgemeinen Geschäftsbedingungen, den Hinweisen zum Datenschutz und nutzungsbasierter Online-Werbung.